| ■サイズ | ■仕様 |
W2700×D240×H2200
| 壁面:塗装仕上げ システム:ロイヤルNH19-25 L=300+SB-25 L=1200エンドHL-25 |
■備考
|
みなさんおはよう! 余田和です。
さて今日は、壁面を旨く活用した図面事例をご紹介していきます。
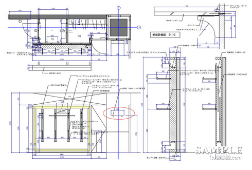
この展開図は、とある百貨店のミセス売り場の一部を表現していますが、
間接照明を旨く活用してディスプレイ効果を狙ってますね。
この手法は、よく使う代表例でもあります。
それでは、もっと詳しく!応援、宜しくお願い致します。 ↓ ↓ ↓
にほんブログ村 
人気ブログランキング
壁面って必ず店舗の奥に存在して、間違えば目立ちにくいエリアでもあります。
しかし、それでは店舗として要をなしません。
一般では、システム壁を使い、そこに棚板やハンガーバーなどを設置しているようですが、私は、「これじゃ客が飽きるよ!」ってよく言います。
まさにその通りであって味気が無く、平凡なものを客は期待していません。
特に女性は、こういうところに敏感なのです。
この壁面はそんなダレムードの壁面に、まるで「喝!」を入れるようなムードがあります。
ちょっと脱線しました。
普通はスリットなどで構成する壁面を、ニートモジュールなるモノを使用して他の壁面との差別化を計っています。
おまけに、壁面をぐるりと走る間接照明は、かなりの訴求効果が期待でします。
店頭に持ってきても良いぐらいのディスプレイ壁面は、アイデアもさることながらこれは、もう真似るしかない感じがします。
是非是非、試すかちはありますよ。
※ニートモジュール
ちょっとスリットとは違い、上品で質が良い感じがしません?
というわけで、最後に詳細図も添付しておきます。

これは、平断面を示してますが、寸法等をしっかり読み取ってください。間接照明の位置関係や、開口等々の実勢寸法などが理解できます。

こちらは、縦断面図です。
それでは、毎日頑張って勉強してください!そして、一日も早く素晴らしい図面屋さんになってください。
応援、宜しくお願い致します。 ↓ ↓ ↓
にほんブログ村 
人気ブログランキング