■サイズ
| ■仕様 |
W1400×D550×H2488 図面参照 | 本体:木シカモアウレタンCL仕上 ガラス開扉:T=6 クリアガラス |
■備考
|
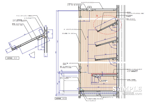
今回は、壁面設置の単品ショーケースとその断面図をご説明すると共に、インロー式での木棚固定の収め方もご覧いただきましょう。
きちんとして設えのこの什器は、某百貨店のブライダル売り場に設置されています。メインがショーケースとなり、下段ではストックを兼ねた販売機能も備わっています。
がたいは大きいものの壁面什器の機能は、目を見張るものがあります。そして、ショーケース内部には傾斜した木棚がイレギュラーに固定されています。
続きに拡大図も設けていますので、続きをお読みください。
応援、宜しくお願い致します。 ↓ ↓ ↓
にほんブログ村 
人気ブログランキング
それでは、什器全体についてはご理解なさったところで、ショーケース内部の説明を続けましょう。
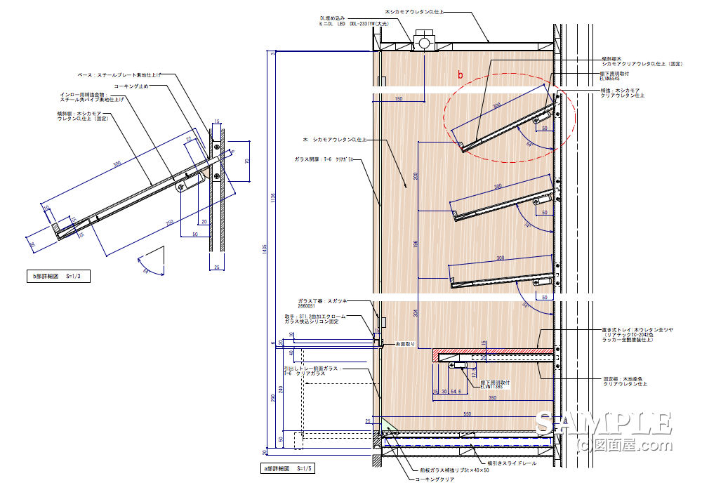
以下の作図をご覧ください。
前述の断面図の拡大版ですが、木棚固定がしかりと描かれていますが、ここでは普段使用するスリットでは無く、全てが固定棚です。
陳列される商品は固定化されていると見受けられますが、まるで飲食のサンプルウインドの作りと似通っていると感じます。
ここでのポイントは、
木棚の固定方法です。
このサイトでも多く説明している
インロー式での収めとなっていますが、ご理解できますか?
什器の背板に補強パイプを事前に仕込んでいるのが見えますが、その補強角パイプに棚板を差し込んでの固定方法です。
その補強角パイプの座に角度を付けて溶接しているのも確認できます。この仕様は壁面などでも同様の収め方を用いますので、しっかり覚えておいてください。

尚、下段であるストック兼引き出しに関しては、一枚目を参考としてください。この形式のショーケースもときどき見受けら得ます。
実際にこの什器の使い勝手は、良いかどうかは分かりませんが壁面オーケースとしては見劣りが無い素晴らしい作りの什器と思います。
応援、宜しくお願い致します。 ↓ ↓ ↓
にほんブログ村 
人気ブログランキング