
■サイズ
| ■仕様 |
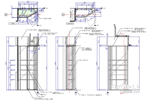
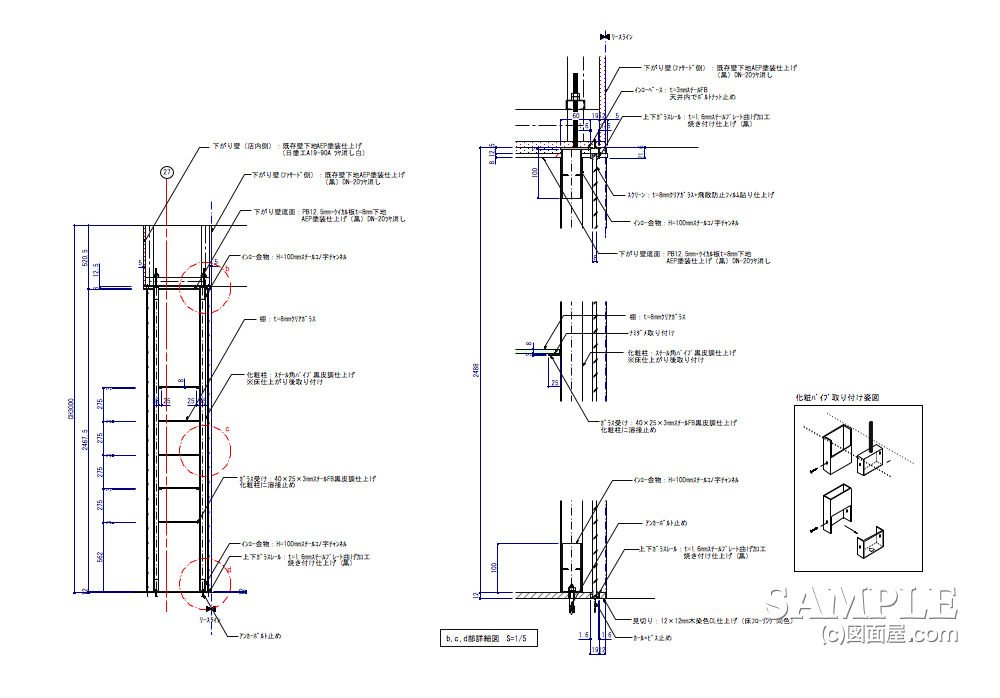
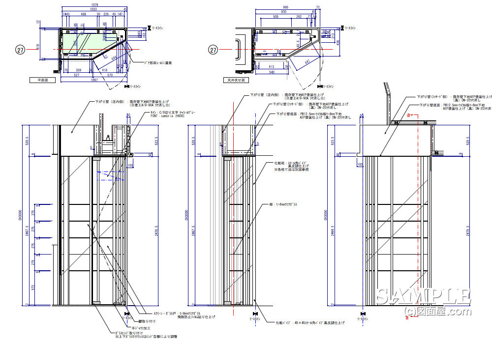
W995×518D×H3000 図面参照 | ウインド:t=8mmクリアガラスFIX
化粧柱:スチール角パイプ黒皮調仕上げ
※床仕上がり後取り付け 棚:t=8mmクリアガラス |
■備考
|
厄介な図面でしたが、先ほどちょっと修正を加えて完成しました。と言ってもこの図面はもうかなり前のものです。
投稿する前にチェックをしたところ間違いを発見し、修正をしました。かなりのデザインが全面に出て
あまり参考にならない図面事例かもしれません。
しかし、
ガラス棚を受けている化粧柱の納めが気になったので、投稿してみました。それ以外は見聞を広める程度で見ておいて下さい。
では、その納めを見てみましょう。
応援、宜しくお願い致します。 ↓ ↓ ↓
にほんブログ村
デザインランキング
図面を描いていると、いろいろな難関にぶち当たりますが、今回の事例での
納めは苦肉の策でしたね!それでは、以下の断面詳細図を見て下さい。

注目は、右の図面とその横のスケッチです。
普通このような柱は、ケンドン式(上げて下ろす)で、天井を貫通させて床で何らかの固定をします。しかし、今回はこの
柱が天井を貫通できない条件でした。
そこで考えたのが、スケッチのような納めです。
まず最初に、天井に上部固定の補強金物をボルトだけを貫通させ、Mチャンネルにナットで固定させます。
次に、床固定ですが図面ではアンカーでの固定を指示しています。(テナントの場合ビル側と協議が必要です。)
上下の固定が終わってから、
金物化粧柱を差し込むというか、この場合左から右にスライドさせてビスで固定します。このショーウインドでは、化粧柱が多いためにこの納めが一番と考えたわけです。ただ、問題もあります。
それは、
上限の固定カ所にインロー式での補強金物と化粧柱との接合部分にラインが入ることです。まあ、それほど目立ちはしませんが、私としてはちょっと・・・・・。
ただ、どうしようもないときだったので、我慢我慢!
応援、宜しくお願い致します。 ↓ ↓ ↓
にほんブログ村
デザインランキング