
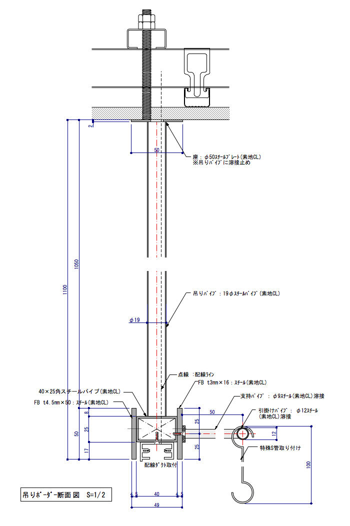
| ■サイズ | ■仕様 |
W3065×D49×H1100 図面参照
| 本体:40×25スチール角パイプ素地CL仕上げ +t4.5×50スチールFB素地CL仕上げ 吊りパイプ:φ19スチール丸パイプ素地CL仕上げ サイン持ち出しパイプ:φ9スチール丸パイプ素地CL仕上げ |
■備考
|
店舗設計を毎日のようにこなしていると、それはもう種々雑多な作図を描かなければなりません。今回の事例もそのひとつです。
このコーナーは「食育」といって、食べ方や栄養の教育をプレゼンテーションするものです。みなさんも食品売場で目にすることがあると思います。
そんなコーナーをお客様に認識してもらうためのボーダーですが、特記するほどのものではありませんししかし、その
つくりと納めについては知っておく必要があると感じ投稿しました。
では、続きをどうぞ!
●スポンサードリンク
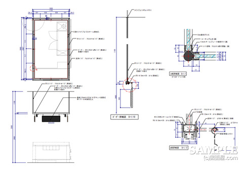
全体図(平面図、展開図)はそれほど勉強になるとは思いませんが、その詳細図はかなりの経験者でもすぐに描けるかどうかは疑問です。

上記の図面は、吊りボーダー用のパイプとそれに付随するメッセージパネル(黒板)、配線ダクト等々です。
よく見かける吊りボーダーのほとんどがこのパターンだと思っていただいても誤りは無く、ボーダー自体の形状で若干の納めが変わる程度です。
このサイトでも多くは無いですが、サンプル的な記事はありますので参考にしてください。
注意点としは、以下のことが挙げられます。
それは
ボーダーの重量によってスラブから吊るか、天井下地材から吊るかを見定めることです。間違えば不慮の事故にも結びつくので必ず業者さんとの打ち合わせは欠かせません。
特に
サインや照明器具などが取り付けられる場合は意識して作図することです。そして、
吊りパイプの取り付け位置に関しても安易にピッチだけを追いかけて決めない事です。
ボーダー自体スチール製のものが多く、重量がありとても長い製作物となります。ですからほとんどが分割して搬入。そして、現場で組み立てて吊り込む事がほとんどです。
ここで必ずジョイント部分というのが出てきます。
これは、前述の吊りパイプの取り付け位置の大きな関係があります。このジョイント部分になるべく吊りパイプが配置されるように設計することです。
でないと
バランスが悪くなってボーダー自体がたわむことがあります。
これについては
設計者の責任でもあるので、必ず先輩から指導を受けることをお薦めします。
最後に、1枚目の作図の右上の詳細図ですが、これはボーダー下の什器のガラスパーティションですので、今回の吊りボーダーには関係がありません。
ちょっとややこしい図面で申し訳ありませんが、これも参考にしていただければ幸いです。
応援、宜しくお願い致します。 ↓ ↓ ↓
にほんブログ村 
人気ブログランキング