
変化の感じられない天井には、その解決策として様々な照明装置と設置することがあります。今回は天井造作でも希に見受けられる作図事例をご紹介しますしょう。
一般の仕様にある折り上げ天井+間接照明とは、違った雰囲気が醸し出せます。まさに、今回の断面詳細図がそれであって、ライン状での照明ボックス+照明も天井空間には必要な要素のひとつです。
特にスポットライトをボックス内に納めて、天井面をスッキリさせることで天井空間を広く見せることも利点のひとつです。
以下が、具体的なイメージですが、右側の写真が当を得ているかもしれません。

※イメージ画像提供元:時事ドットコム、ハーバーハウスそれでは、その納めについて進めていきます。
続きをご覧ください!
応援、宜しくお願いします!↓ ↓ ↓
デザインランキング
にほんブログ村
●スポンサードリンク
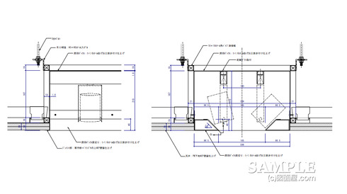
このライン状に堀上げる場合収め方については、大きく2種類の方法があります。
1つは、今回の添付図面と同じようにスチールやボンデ鋼板で別途製作、すなわち工場で製作して現場で取り付ける納め方です。
2つ目しては、天井材(プラスターボード)で現場施工での納めです。
コスト的には、圧倒的に前者の方が高く付きますが、様々な形状に対応出来るという利点では、スチール素材を使用する方が良いと考えます。
一方、現場施工で天井照明ボックスの場合は、その形状に制限があるために単調なフォルムになります。
しかし、コストと手間が大幅に削減出来ることが良いと考えます。
どちらについても、一長一短ありますが、設計する物件の大きさや、規模などを考慮することが肝心です。ここは、どちらの方法が適しているかを判断することをお薦めします。
さて作図的なことに触れるなら、押さえておきたいポイントがそれぞれの施工方法あります。
《スチール・ボンデ鋼板での施工》
ボックス自体の長さ応じて、ジョイントが必要になるという点です。これもどんな造作物、什器に当てはまります。
最後にボックスのフレームパイプを19角にしていますが、天井造作の多くはこのサイズを使っているので、これも覚えておいたほうがいいですね。
※詳しくは下記記事を参照下さい。
⇒
堀上天井の断面詳細図《プラスターボードでの施工》
プラスターボードとのジョイント部分は、
必ず1mm〜2mm程度の段差を付けておくことです。サッシや建具枠を設置するのと同じ考え方ですね。
今回はこの段差を寒冷紗とパテで埋めて同面にしていますが、これは作図マニュアルとして覚えて置くことをお勧めします。
それでは、今回はこれで終わりますが、理解していただきました? やはり文章での表現は難しいですね。もっと勉強が必要ですね。(笑)
応援、宜しくお願いします!↓ ↓ ↓
デザインランキング
にほんブログ村