
■サイズ
| ■仕様 |
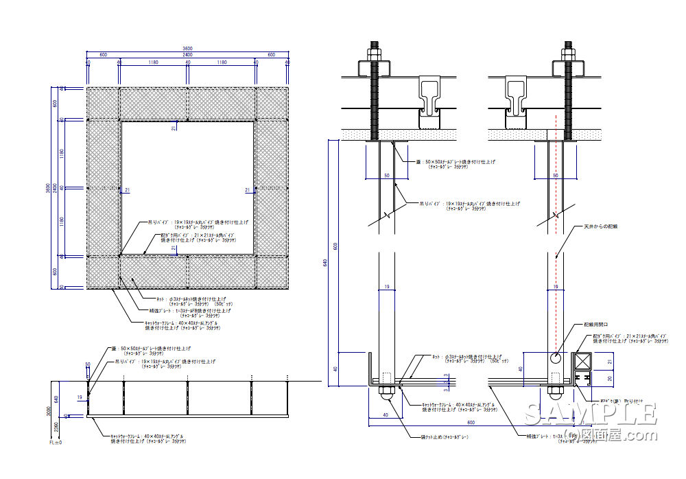
W3600×D3600×H640 図面参照 | フレーム:スチールLアングル焼き付け仕上げ ネット:スチールネット焼き付け仕上げ(φ3,50ピッチ) 吊りパイプ:φ19スチール丸パイプ焼き付け仕上 |
■備考
|
この作図事例は
キャットウォークを模した吊り天井の詳細図ですが、あえて
キャットウォークなんて言葉が合うとは思いません。
食品売場で、農産物(野菜、果物)に効果的に照影を当てるために設置した配線ダクトを付けたルーバーのようなです。
ただ、この事例は
汎用性があり食品売場だけでなく、工夫すれば全てとはいいませんが、他の売場でも十分対応できる図面とも感じました。
では、その真相は!
頑張ってます!↓ ↓ ↓
デザインランキング
にほんブログ村
●スポンサードリンク
本来、
キャットウォークとは大きな体育館や劇場の舞台などで、高所に設置した照明や緞帳などの調整や点検等のために、天井吊り式のパイプとメッシュパネルで製作された通路んことなのです。
さて、トップページの作図だけでは見にくいので拡大図を添付しました。

この場合に注目してもらいたいのは、吊りパイプですが、一部の吊りパイプに配線ダクトの電源を取るために
19mmスチール角パイプを使用しています。
また、天井接点部では吊りボルトの
溶接位置のも注意してください。
今回は、食品売場での設置でしたが、例えばスポーツショップの天井にアクセントとしてこのようなキャットウォークの吊り天井を取り付けても面白いのでは・・・・。
そして、あくまでもキャットウォークを模しているのでパイプ組ではなくLアングルとフラットバー(FB)を溶接した構造にして軽量化を計っています。
頑張ってます!↓ ↓ ↓
デザインランキング
にほんブログ村