
■サイズ
| ■仕様 |
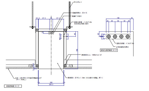
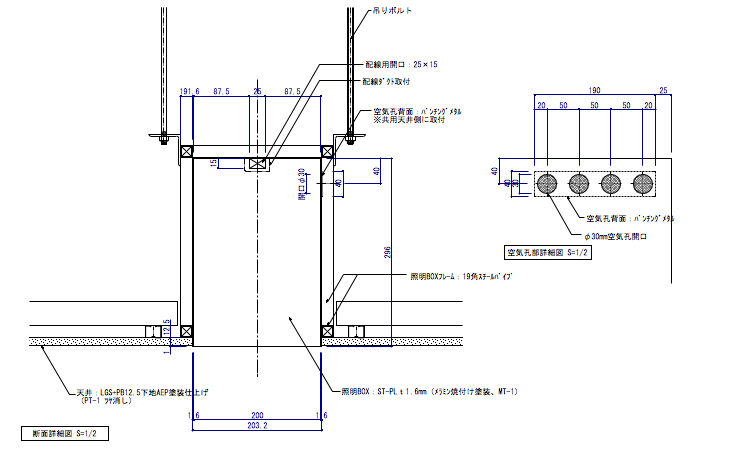
W2150×D1040×H296 図面参照 | 照明ボックス:スチール曲げ加工焼き付け仕上げ 空気孔:パンチングメタル貼り |
■備考
|
今回は、私には滅多に関わることの無い
店舗環境での天井造作事例をお届けします。
というのも、広い店舗での天井って、ただでさえ変化を付けるのがむつかしいと思われがちです。
しかし、この事例はちょっと興味を感じました。
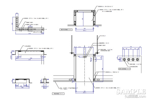
この図面は、たまに見ることが出来る
天井埋設の照明ボックスの事例です。
スチールの曲げ加工した本体に焼き付け塗装で仕上げられた照明ボックスは天井スラブから吊りボルトによって固定されています。
それでは、
照明ボックスの詳細図を見ていきましょう。
続きをご覧ください!応援、宜しくお願い致します。 ↓ ↓ ↓
デザインランキング
にほんブログ村
●スポンサードリンク以下の図面は、事例図面を一部拡大したものです。これで理解はたやすいと感じますが、如何ですか?
照明ボックス上部に取り付けた配線ダクトには
多数のスポットライトが付くのでボックス内部には
熱抜き用の空気孔を設けています。

この場合は、だだっ広い天井でのアクセント効果を期待できると共に、天井に
光のラインが出来、
ショップそのものに動きというものを醸し出す効果があります。
また、その配置によっては
客導線との兼ね合いもあると感じます。
店舗環境は違えど、同仕様での事例もあります。 以下の写真をご覧ください。

この場合は、天井がスケルトンでこの照明ボックスが無いとなれば如何でしょう? ちょっとというかかなり閉まりが無くなります。
ですから、
客導線を考えて取り付けを考えたのでしょう。 納得です。
たいしたことでは無いにしろ、設計上の注意点としては、照明器具のタイプやサイズを良く吟味することですね!
場合によっては、収まらない事もあるので
器具サイズと有効寸法には十分な調整が必要です。
応援、宜しくお願い致します。
↓ ↓ ↓

デザインランキング

にほんブログ村