■サイズ
| ■仕様 |
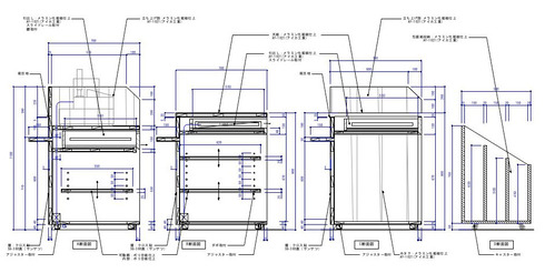
W2200×D700×H1100 図面参照 | 仕上:木軸下地+メラミン化粧板 表面腰:一部クロス張り仕上げ |
■備考 作図日:不明 【CT_006】は『counter』の略語 |
【作図解説】
この作図事例は、店舗什器の中でも最も定番といえるレジカウンターです。
これまでにも多くのバリエーションを紹介してきましたが、今回のタイプは必要最低限の機能を備えた基本構成のモデルです。
一昔前は、レジやカード決済端末を設置するだけのシンプルな構成が主流でしたが、近年はパソコンやプリンター、FAXなど複数の機器を扱う店舗が増え、カウンター内部のレイアウト構成がより複雑化しています。
そのため、配線経路や機器寸法を考慮した設計が求められるようになっています。
それでは続きをどうぞ!
頑張ってます!
↓ ↓ ↓

デザインランキング
●スポンサードリンク【作図ポイント】
断面図を順に追っていくと、内部の収納構成がそれぞれ異なっているのが分かります。抽斗や可動棚、オープン部など5種類のタイプがあり、機能ごとに最適な収納形状を採用しています。
特にB断面ではノートパソコンをスライドトレーに収納できるよう設計しており、使用時の取り出しや操作性を重視した構造になっています。
注意すべきは、機器の重量に見合った構造補強とスライドレールの選定です。重量物を扱う場合は、芯材密度を高くして耐久性を確保するなど、構造面の検討を怠らないことが重要です。

【私感として】
このタイプのカウンターは一見オーソドックスですが、内部設計がその店舗の“使い勝手”を左右します。
特に現場では、導入予定の機器寸法が変更になったり、追加機器が発生するケースも多いため、最初から余裕をもたせた寸法計画が不可欠です。
また、将来的な拡張性を見据えて、配線や通気、点検スペースを確保しておくと、後々の修正や入れ替えにも柔軟に対応できます。
【まとめ】
シンプルながらも実用性の高い構成で、基本設計や初期提案時の参考図として活用しやすいレジカウンターです。
現場での使用機器や動線を事前に整理し、機能と構造のバランスを取った設計を意識すれば、長く使える什器になります。
頑張ってます!
↓ ↓ ↓

デザインランキング