
■サイズ
| ■仕様 |
W1900×D500×H2250 図面参照 | 本体:PB下地塗装仕上げ 面材:サンメントA332(濃茶塗装) フレーム:22×22スチール角パイプ(濃茶焼付塗装) t6mmクリアガラスFix |
■備考 ★
|
今回は帽子ショップに設営したお客様カウンターです。
造りについては総体的に見て、基本となる造作壁を設営済ませてから什器をはめ込んだ工程で完成したと思われます。
とりあえず2箇所の断面図を見てみましょう。

向かって左の接客カウンター
例えば、上部の垂れ壁と接客カウンターの開口部が、特に気を付けなければならない箇所です。
この場合、工場で製作するものと現場施工の分割ラインや指示をしておきます。
向かって右のショーウインドウ
基本的な考え方として、壁面と垂れ壁、そして左側の袖壁は現場での施工範囲となります。
ただ、垂れ壁下の面材部分と接客カウンター天板の一部分については、工場製作とします。
垂れ壁下と腰の面材は現場で足す事が出来ないので、予め現場でカット出来る程の長さにしておく事がポイントです。
それでは、
続きをご覧ください!
頑張ってます!↓ ↓ ↓
デザインランキング
にほんブログ村
●スポンサードリンク
先ほどの続きですが、ガラススクリーンについても同様に、フレームとガラスは現場にて固定となります。
しかし、接客カウンターや上部の面材を固定した後に取り付けるのが最も望ましいです。
ここから、各部の詳細図をご覧いただきながら納め方について説明していきましょう。
まずは、ガラススクリーンのフレームについてです。以下の
a部詳細図を参照下さい。

22mm×22mmの角パイプをフレームとし、9mm×9mmの押さえ縁でガラスを固定しています。
押さえ縁の背面には同じ高さのフラットバーをフレームに溶接処理してあります。
フレーム本体の固定方法は、ガラスをはめ込む前に上部の天蓋とカウンター天板、そして壁面にビスで固定しています。
続いて
接客カウンターについてです。

上のA断面図を見てください。お客様が椅子に座る箇所で天板だけが壁面に固定してありますが、これでは不安なので、角パイプで補強を取っています。
補強パイプは2本取り付けています
上部欄間のガラススクリーンは前述で記しているように角パイプフレーム+ガラスの構成です。
詳しくは、以下b部詳細図に表現されています。

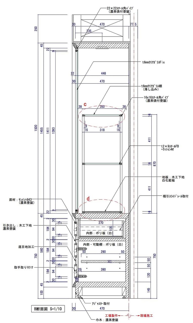
最後にショーケース腰部の説明をしましょう。

上部のB断面図をご覧ください。

下部にストック部分がありますが、上段だけが引き出しで残り2段は開き扉となっています。
あたかも引き出しが3枚あるようにみえますが、いわゆるダミーです。洒落てます。
このストック上にはディスプレー用のフレーム棚を設置しています。
以下のc,d部詳細図を参照下さい。

フレームに溶接したFBにてガラスや底板のベニヤを受けている収めとなっています。
厄介な作図事例でしたが、ゆっくりで良いですよ!
慌てずに読み取ってください。
長々とおつきあいありがとうございます。
頑張ってます!↓ ↓ ↓
デザインランキング
にほんブログ村