■サイズ
| ■仕様 |
W1940×D800×H965 図面参照 | 本体:木下地化粧合板仕上げ ショーケースフレーム:SUS.HL曲げ加工 ショーケース:t=12mm透明ガラス組 |
■備考 スタッフさんDL必要かも |
今回は、接客カウンターを兼ねたショーケースの紹介です。
大型商業施設のインフォメーション内に設置しました。
什器の高さ(H=1000mm)が、使い勝手が良かったようです。
スタイルと仕様などは、ごく一般的なものです。
が、
所々にデザインを施していますので理解してください。
この事例は、ショーケースの
"きほんのき" と言っても過言ではありません。
ですから、是非自分のものとして活用ください。
但し、しっかり理解することが、前提条件です!
あやふやだと、後で恥かきますよ!(笑)
まぁ、自分の引き出しを一つ増やす程度でご覧ください。
それでは詳細図を見てください!
頑張ってます!↓ ↓ ↓
デザインランキング
にほんブログ村
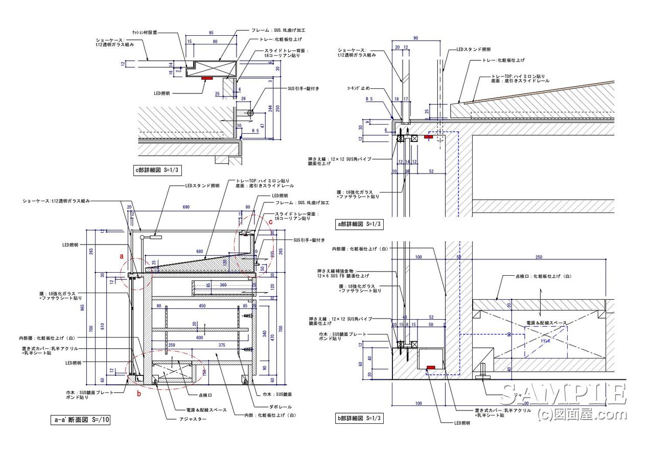
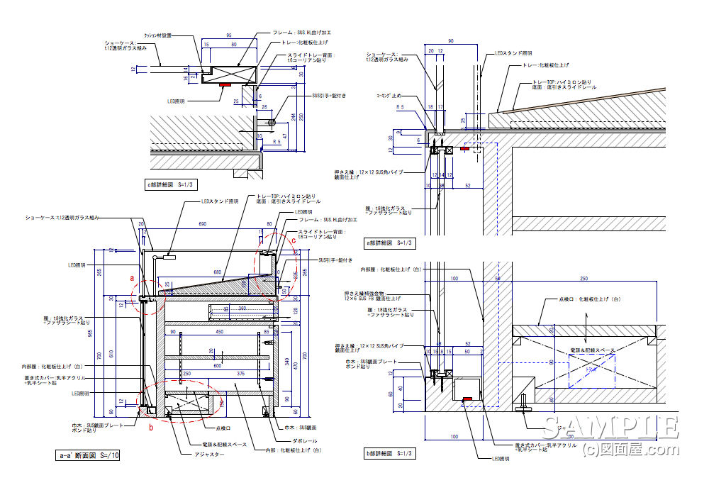
●スポンサードリンクこの図面は、2枚でまとめています。以下の作図事例がそれです。
ここには、最低限必要なの
詳細図を示しています。
左下の断面図は、最初の図面に
赤でマーキングしたカ所を作図したものです。
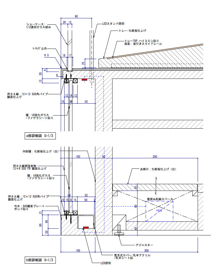
そして、これだけでは用は足りませんので、紙面の右半分を使ってと拡大した詳細図を描きました。
所々に施したデザインとは!
腰部に注目!
お客様に対してインパクトを与えるために、 強化ガラスにファサラシートを貼り、そこに演出照明を組み込みました。今では誰でもがするデザインです。
この装置に効果があって、集客のキーポイントとなったようです。
ただ、大変なのは納めもそれなり複雑になり作図は大変!
必然的に詳細図の箇所は増えますからね。(泣)
今回は、
"きほんのき" と言いつつも図面の精度はやや厳しくなりましたね。初心者さんごめんなさい!しかし、じっくり見ていただければ理解できる内容です。
それでは、もう少し説明を加えることにします。
詳細図が必ず必要となる部分は3カ所あります。
この3カ所を覚えておけば、どこを詳細図として描けば良いがよく分かります。
1. ケースのガラスと天板との収め
2. ケースのスライドする底板部の収め
3. 間接照明を取り付けた腰部分の収め
どれも断面図が主となりますが、場合によっては
平面詳細図があるとより分かりやすい事もあるので必要に応じて追加すれば問題ないでしょう。
では、拡大図で度理解頂きましょう。


上記の図面が必要最低限ので図面となりす。
前述した3カ所の詳細図が描かれているのがわかりますよね。
このショーケースでは、天板の上にスライドするトレーが乗っているので底引き式のスライドレールを使っています。
トレーを引いた時にスライドレールが丸見えになってしまうので見栄え的には良くありません。
最近では新たなスライドレールも販売されてますので、自分で調べてみるのも良いでしょう。
変わって腰部の断面図ですが、現場での取付手間を省く事と、仕上がりラインを合わせる為にガラス押さえをフラットバー(FB)ベースに溶接したものを持ち込みました。
最後に、この断面図で配線経路も明記して分かりやすくする事も忘れないようにして下さい。
ザックリ進めましたが、文章は難しいです。
貴方が、目の前にいるならもう少しましな説明が出来るんですが......。よろしくお願いします
今回は以上とします。しっかり勉強してください。
長々とお付き合いありがとう!
頑張ってます!↓ ↓ ↓
デザインランキング
にほんブログ村