
■サイズ
| ■仕様 |
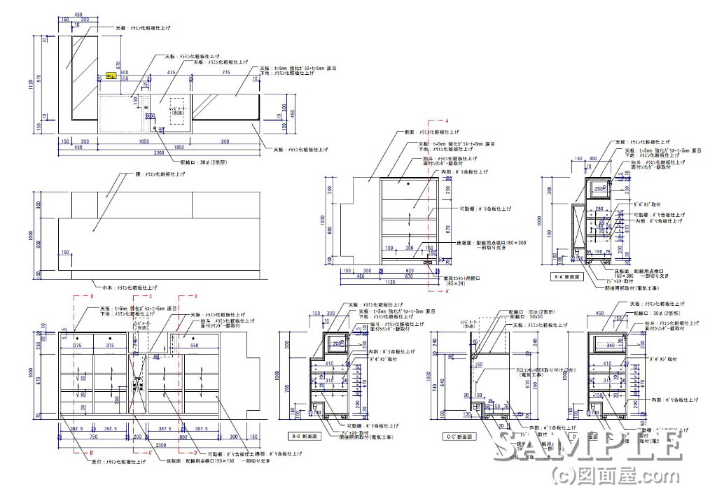
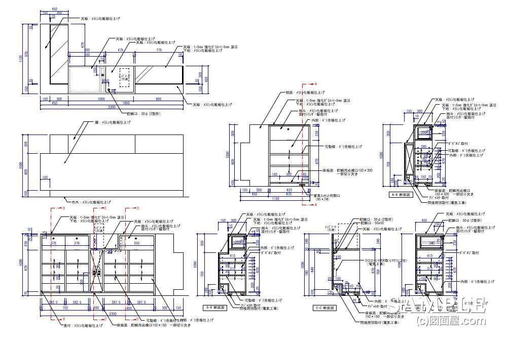
W2300×D1120×H1000
| 本体:オール化粧板仕上げ カウンタートップ:t=5mm強化ガラス+ナミダ目 |
■備考
|
最近では、大型ショッピングセンターに必ず出店している
眼鏡専門ショップでの什器です。
基本的にはサービスカウンターと呼ばれていますが、扱う商品の特性でサービスカウンターの機能もあれこれと、その使い途は多様です。
この場合もメガネショップなので、かなりの機能があって設計に当たっては、かなり苦労しました。
ですから、
ショップのスタッフさんと打ち合わせることである程度は理解して描くことが出来ました。
その細やかさを見ていただきましょう。
それでは、
続きを!頑張ってます!↓ ↓ ↓
デザインランキング
にほんブログ村
●スポンサードリンク
その「つくり」自体は、それほどたいしたことはありませんが、それぞれの機能を理解するのはかなり難解です。
過去にも眼鏡ショップは、何件か設計しましたが、ここまで細かい機能は初めてでしたので、非常に勉強になりました。
それでは、サービスカウンターの主要断面図をご覧ください。

トップページから読み取っていただければ、どの断面図かは一目瞭然でしょう。トップの強化ガラスはショーケースではありませんので注意して見てください。

こちらも同様に、トップページから読み取ってください。
設計者として断面図を描くのは当たり前で、今回のような作図はまだ簡単な方です。
もっと厳しい図面を描いてきたうちのスタッフには朝飯前です。が、機能については悩みの種となるコトでしょう。
ちなみにこの図面を描いたスタッフは、当時の私のスタッフ3年目です。(アルバイト)毎月、15万円払ってました。(泣)
今ではもっと稼いでいるかもしれません。手に職を付けておけば、「食いっぱぐれ」は、無いと言うことかもしれません。
応援、宜しくお願い致します。
頑張ってます!↓ ↓ ↓
デザインランキング
にほんブログ村