
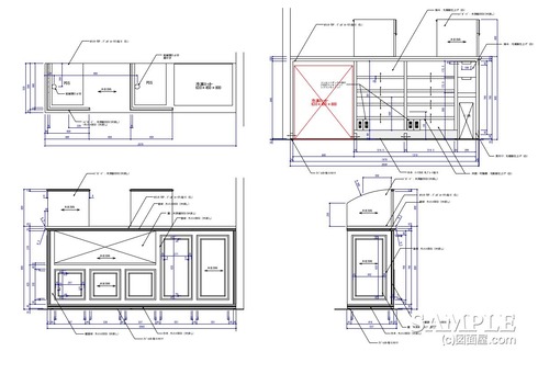
今回の事例は、ケーキショップのレジカウンター図を例にとって、サンメント(面材)の納まりついて検証していきます。
尚、仕様、寸法については図面を参照してください。それでは進めます。
まずは、天板と腰出隅、そして巾木のサンメント同士の取り合いを見てましょう。
それぞれの形状は下記の通りです。
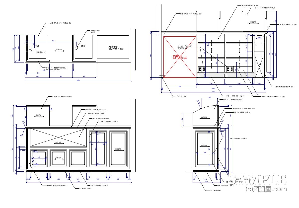
以下サンメントを今回の事例で使用してますので、目を通しておいてください。



左側が天板下サンメント、中央が出隅サンメント、右側が巾木サンメント
イメージ画像提供元:みはし株式会社
応援、宜しくお願いします!↓ ↓ ↓
デザインランキング
にほんブログ村
●スポンサードリンク

上記詳細図には、それぞれの面材を納めた時点での仕上がりラインを示しています。
赤い点線が天板下で、青の一点鎖線が巾木、断面で見えているのが出隅のサンメントなんです。
これを見る限りでは、上手くチリが付いて納まっているように見えます。
ですが、丸く囲った部分はサンメントがかかっていませんよね。
この部分だけ木材で処理をしなければならないんです。
単純に、それぞれの面材の奥行きだけで判断すると、このように綺麗に見えない部分も出てくるんです。
それでは出隅に変な納まりが出来てしまった理由ですが、いたって簡単です。
それはサンメントを多用し過ぎた結果なんです。天井の廻り縁や間仕切りの笠木などは、仕上げを見切る働きがあるのです。
什器にいたっては殆どが装飾用です。
そのため、出隅だけだとか、天板と巾木だけだとか、サンメント同士が交差しないように使う事が重要です。
このレジカンターでは他にも数種類のサンメントを使って装飾しているのですが、多すぎますね。
他に青点線で囲った所をみると、サンメント同士で交差はしていませんが、途中で切りっ放し状態です。
これでは装飾材としては綺麗な見え方はしませんよね。
なので、サンメント等の装飾材を使う時はあまり途中で途切れるような使い方は避けるべきです。
応援、宜しくお願いします!↓ ↓ ↓
デザインランキング
にほんブログ村