| ■Data |
| ■サイズ | ■仕様 |
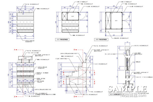
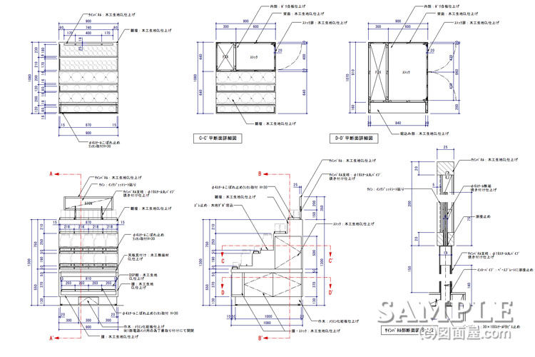
W900×H1300×D1080
| 木部:化粧板仕上げ φ4スチールこぼれ止めランカン取付 H=30 |
■備考
|
今回は、食品スーパーなどの壁面空きスペースを効率よく使った作図事例をお見せします。雛段を活かした多段什器です。
以前、リサーチがてら市内の食品スーパーで見つけた什器ですが、「これはいける!」なんて思い図面にしてみました。
仕上げ、仕様は適当に指示していますので、ご自身でお考えください。
その食品スーパーでは、ドライフルーツを販売する什器として活用されていました。アクセントにもなる演出什器と考えください。
そして、上部にはインパクトのあるサインなどを設けて販売促進を促します。作り自体は、いたって簡単・シンプルですので、是非参考になさってください。
頑張ってます!↓ ↓ ↓
デザインランキング
にほんブログ村
●スポンサードリンク
要は、「ひな祭りのひな壇」ってとこでしょうか!大変ボリューム感があって、目を引きます。そう考えれば、すぐにでも理解がして頂けると思います。
ただ、シンプルな什器なのですが、私が興味を持ったのは
腰部のディスプレー棚です。

普通、足下に商品を展示することなど、食品ではタブーで有り誰も気がつきません。しかし、この什器は今までのものとは、ちょっと逸脱しているので面白いのです。
お店が、混んでいるときはきっと人でいっぱい出足元など見る余裕がありません。しかし、閑散なときはどうでしょう>?
『ここを狙うんです!』人がいない売場は、什器や冷ケースなどの腰部が、目立ってけっこう味気ないものです。そういうときに、こういった腰部びディスプレー棚を設置することで、顧客に目視してもらい購買につなげる。
とても効果的だとは思いませんか>?私は、思わず「うまいな、この演出!」って思いました。尚、このシチュエーションは食品売場ですが、考え次第で他の売場にも活用が可能かと感じます。店舗設計に携わるかたなら、是非参考になさってください。
次回には、詳細図などを描いて投稿します。
頑張ってます!↓ ↓ ↓
デザインランキング
にほんブログ村