リタイヤした平凡な図面屋です。仕事から解放されて日々のんびり気楽に暮らしてます。そんな奴が好き勝手書いてます!

| ■サイズ | ■仕様 | |
| 900×450×1000 | 木部:化粧板仕上げ タイル:天然石モザイクタイル | |
| ■備考 製作日:2009.05 業態:コスメキャビン | ||
【作図解説】
今回の什器は、百貨店の通路面やエントランス付近でよく見かける、いわゆるオープン型のプレゼンテーションテーブル(ディスプレー什器)をコスメ用に落とし込んだタイプです。
上部には透明ガラスの上置き台を設け、新製品を目線に入りやすい高さでディスプレーできる構造としています。
天板の小口には天然のモザイクタイル貼りを採用し、コスメらしい清潔感や品の良さを表現している点も大きな特徴。
下部は引き出しとストックスペースを兼ねる収納で、お客様対応に必要な化粧小物やツールをすぐ取り出せるように設計されています。
サイズ感はコンパクトながら、什器としての役割はしっかり満たしている什器だと感じます。
それでは、続きをご覧あれ!
応援よろしくお願いします
↓ ↓ ↓![]()
デザインランキング
【作図ポイント】
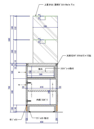
断面詳細図(以下参照)を見ると、上置き台の透明ガラスは、t=8mm。
バックパネル的にディスプレー性を高める役割を果たしている。
天板の小口に天然石タイルは15×15mmのモザイクタイル仕様で、木目化粧板とのコンビネーションでも違和感が出ないようまとめました。
引き出しはレール式で、内法寸法もしっかり確保されているため運用性が高くなっています。
また、内部白ポリ仕上げは衛生面と清掃性を意識したよくあるコスメ什器ならではの仕様。
ベースにはアジャスターを取り付け、店頭の床レベル差への対応も考えました。
【私感として】
全体を通して、コスメ売場に求められる“清潔感”と“扱いやすさ”を小さな寸法の中で上手にまとめた什器だと感じます。
ストック容量と引き出しの取り回しがしっかり確保されている点が、現場スタッフの作業性にも大きく寄与するのと、小振りながら、現場運用をよく理解した什器だと考えます。
コスメ売場のファサードに置いてもしっかり“商品が立つ”デザインと、スタッフが使うための機能性がきれいに両立している。
新製品の訴求、タッチアップ用の小物収納、店頭の限られたスペースでの展開など、幅広い運用が可能な実用性の高いプレゼンテーション什器と言えますね!
店頭でも店内でも柔軟に使える点も魅力で、売場づくりのアクセントとして重宝するタイプだ。
応援よろしくお願いします
↓ ↓ ↓![]()
デザインランキング