
■サイズ
| ■仕様 |
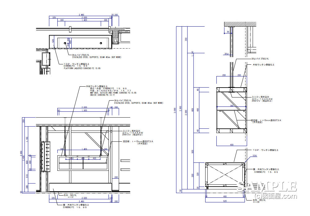
W2020×D520×H600 図面参照 | 吊りボックス・ステージ:木工ウレタン塗装仕上げ 固定棚・仕切り:t=10クリアガラス
|
■備考 作図日:2020.09.24 業態:シューズショップ(ジーゼル) |
【作図解説】この作図事例は、エスカサイドでの
吊り式ディスプレー什器の詳細図です。
よく商業施設のエスカサイドには少なからずガラスFIXされたカ所がありますが、この事例は
そんな環境を旨く活用してものです。
ショーウインドと共に店内からも商品アプローチできるので、
両得的な什器だと感じます。
次ページには、
断面詳細図も添付絵いていますので
続きをご覧下さい。
応援よろしくお願いします ↓ ↓ ↓
デザインランキング
●スポンサードリンク
【作図ポイント】さて、今回の事例の吊り式什器には、下部のステージトップを広く使用できるので視認性が高くなり、訴求効果もあります。
BOXの高さは上端で
1500mmになるように設定していますが、 紳士関連商品を展示するなら、若干高さを上げても問題ないでしょう。
この事例は、もともとシューズ&スニーカーでの売場ですから、現状の高さで十分と感じます。
ただ、注意しなければならない点が若干あります。
それは吊り元です。残念ながら断面図には吊りパイプを天井裏でどうやって固定しているかが表現されていません。
この場合、パイプの太さ、什器サイズ、そして設置位置等を考えるとスラブにボルトをアンカー止めにする方が望ましでしょうが、建築物には御法度かもしれません。
ですから、天井裏に補強金物などを付けてからの固定が良いでしょう。
参考例として以下をご覧になってください。
⇒
銘店・サービスコーナーの照明埋込ボーダーの図面事例_1214パイプの太さと什器サイズについては総重量の関係ですが、設置位置についてはお客様の手の届く場所なので揺れ対策も考慮する必要はありますね。
また、ディスプレイボックスとの固定カ所もボルト締めが妥当で、埋込みにすべきですね。吊り込み後に埋め木をして、タッチアップすればボルトが隠れて見栄えも良くなります。
この事例も含めて天井から吊る造作物は、落下や揺れ、重量等に気を付けて設計するようにして下さい。
ここで、
断面詳細図を添付しますので、上記の懸念材料も再確認してください。

吊りボックス上部に取り付けられた
ミニダウンライトですが、ボックス内の商品を照らすには良いのですが、ボックス下にあるステージ上は影になるので、底面にもダウンライトを入れるべきでした。
吊り式ディスプレイボックスとは言いませんが、今回の事例と似通った写真がありましたのでこちらも参考にしてください。
内照式タイプのディスプレイボックス
商店建築2006.4月号より引用
応援よろしくお願いします ↓ ↓ ↓
デザインランキング