リタイヤした平凡な図面屋です。仕事から解放されて日々のんびり気楽に暮らしてます。そんな奴が好き勝手書いてます!

| ■サイズ | ■仕様 | |
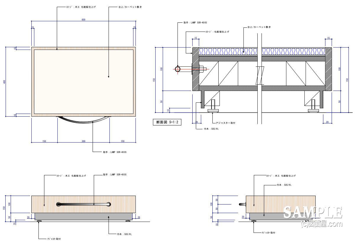
| W600×D400×H150 図面参照 | 見付け:木工化粧板仕上げ 天板:カーペット貼り仕上げ 巾木:SUS HLプレート貼り | |
| ■備考 作図日:2010.07.17 業態:高級婦人アパレル | ||
【作図解説】
売場の中心や導線の結節点に置かれることの多いディスプレーステージの姿図および断面図です。単体使用も可能だが、実際には複数台を組み合わせて構成されるケースが主流である。
基本構成は木下地+化粧仕上げの箱型。天板にはカーペット敷きを採用し、商品を置いた際の柔らかさと視覚的な高級感を確保している。
断面を見ると内部補強を適切に入れ、中央部のたわみを抑制。正面にはLAMP SOR-400S取手を設置し、意匠と実用を兼用。台輪はSUSヘアライン仕上げとし、アジャスターでレベル調整可能な構成としている。
やや高級感ありです。
続きをご覧ください!
応援よろしくお願いします
↓ ↓ ↓![]()
デザインランキング
【作図ポイント】
この種のステージは単純な箱に見えるが、寸法バランスが極めて重要。高さと奥行きの比率を誤ると重たく見える。
天板カーペットの納まり方法を明確に指示すること、複数台設置時のジョイントラインとレベル差を想定して描くことが必須。単体図でもセット運用前提で考えるのが実務的視点。
以下断面図は、必須です(初心者レベル)。
【その他・私見】
華やかさはないが、売場の完成度を左右する什器。商品を引き立てるための“無言の土台”。こういう什器こそ図面精度がそのまま現場品質に直結する。
【まとめ】
ディスプレーステージは売場構成の基礎。シンプルな形状だからこそ、構造・納まり・プロポーションの積み上げが問われる。
主役を支えるための精度を忘れずに描きたい一台。
応援よろしくお願いします
↓ ↓ ↓![]()
デザインランキング
ま〜
図面屋ま〜では、若き同業者の方々のお役に立てるよう、今まで描き続けてきた図面資料やデザイン資料などをお伝えしております。 ただ、掲載している作図資料はあくまで資料であり、全ての店舗や施工に当てはまるものではありません。ですから、参考程度の資料とお考えください。
Powered by ライブドアブログ