■サイズ
| ■仕様 |
W3840×D597×H2500 図面参照 | 壁面:t=10mm石貼り+モザイクタイル貼り ニッチ内壁面:AEP塗装仕上げ |
■備考
|
この作図事例は、
ビジュアルプレゼンテーション(VP)効果を、確実に助長させるニッチ風の壁面造作の事例及び、ニッチ内に納まる固定式ハンガーラックの作図です。
この図面には、納め方などの情報が、多く詰まった作図です。特に納めに興味のある方にとっては、
非常に勉強になる図面事例です。
難しさは、多少あるでしょうが覚える気があれば、誰にだって描けます。不可能はありません。ただ、やたらと時間はかかります。忍耐力勝負です。
そして、今まで以上に図面などが多く出てきますので、ここ一番しっかり理解してください。期待しています。
それでは、
説明を開始します!
応援、宜しくお願い致します。 ↓ ↓ ↓
にほんブログ村
人気ブログランキング
●スポンサードリンク
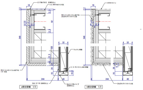
まず、はじめに
ニッチ風の壁面仕上げの
石材とフレームとの納め方がポイントとなります。ここは、しっかり読み取り、理解してください。

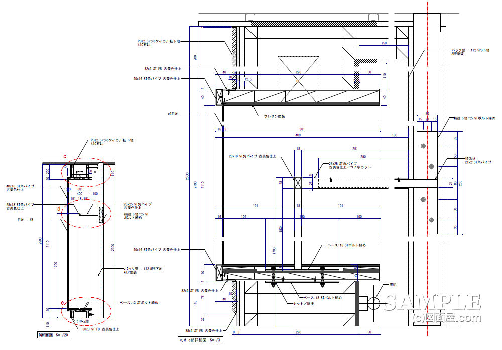
上部の部分詳細図を見て頂くと
石材(斜線で表現)、そしてモザイクタイル(斜線で表現)とフレームの納めが、理解出来ると思います。フレームは木部です。
それほど、ややこしい図面でもありませんのでゆっくりでいいですから、理解してください。
次に、
ニッチ内部にある固定式ハンガーラックについて説明します。
(赤dでマーキングしているところです)
この
ハンガーラックは、ステージ天板での固定で、振れ止めとして壁面から持ち出しパイプを
インロー式で固定しています。
自立式では、やはり厳しいと考えましたね。この手法はよく使いますので、作図としての汎用性は、感じます。
これも覚えておいてください。上記図面はちょっと、見にくいようなのでもう一枚追加します。

左の断面図は、無視して右の図面を読み取ってください。
この
ニッチ風の壁面造作の基本構造は木軸でいいのですが、このボリュームを考えれば、LGS及び、スチール角パイプも付加して考えることも一案です。
ザックリでの説明ですが、図面を照らし合わせて読み取れば必ず理解出来ると感じますので、しっかり勉強してください!
応援、宜しくお願い致します。 ↓ ↓ ↓
にほんブログ村
人気ブログランキング