
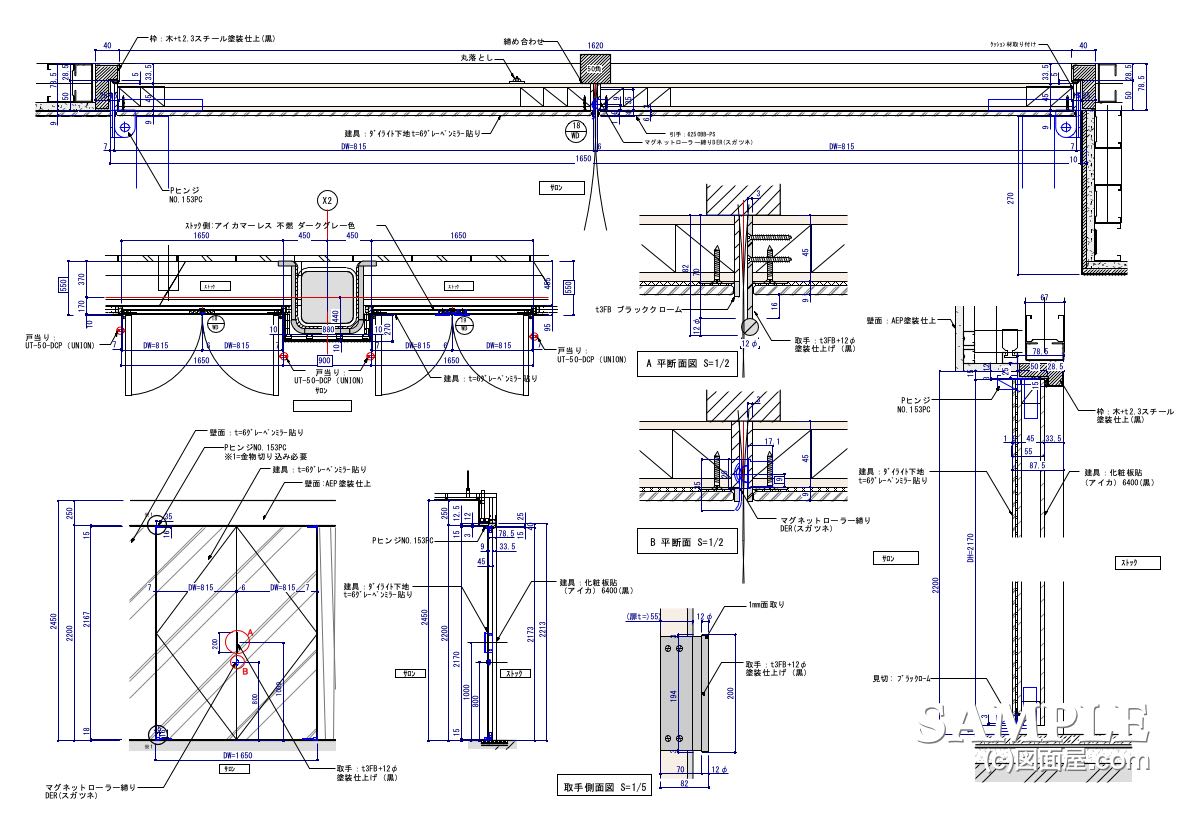
■サイズ
| ■仕様 |
W1650×D78.5×H2200 図面参照 | 枠:木工+t=2.3スチール曲げ加工の上塗装仕上げ(黒) 建具:ダイライト下地t=6mmグレーペンミラー貼り
|
■備考
|
【作図解説】
この図面は、商業施設内サロンに設けられた観音開き(両開き)建具の設計図です。開口部の扉は左右対称で各1650mm幅と大型でありながら、床面に支持点を持たない天吊り構造が採用されています。
上部の支持にはPヒンジ(No.153PC)を用い、下部にはキャッチャー類を設けず、スッキリした意匠に仕上げられています。
扉の中央合わせ部分には、DEK社製のマグネットローラーキャッチが取り付けられており、しっかりと保持しながらもスマートな開閉が可能な構成です。
仕上げ材には、アイカのメラミン化粧板を採用し、木口や面取り部にはステンレスアングルを用いて、耐久性と意匠性を両立させています。
裏面では、反り防止のためにスチールのLアングルや補強バーが組み込まれ、全体の構造強度にも配慮がなされています。
A・Bの断面詳細図では、ヒンジの取り付きや仕上げの取り合いまで細かく描かれており、施工精度の高さが求められる設計です。
応援、宜しくお願いします!↓ ↓ ↓
デザインランキング
にほんブログ村
●スポンサードリンク
【作図ポイント】
・Pヒンジ(No.153PC)のみで天井から吊る構造で、床面に支持部材はありません。
・中央にマグネットローラー(DEK)を設け、扉の保持と軽快な開閉動作を実現。
・下部にガイドやキャッチを設けないため、ヒンジの施工精度が意匠を左右します。
・扉面はメラミン化粧板(アイカ)+SUS仕上げで、意匠性と耐久性に優れた構成です。
・扉裏にはLアングル補強を施し、反り防止と本体剛性を確保しています。
【まとめ】
この観音扉は、商業施設ならではの意匠性とメンテナンス性を両立した好事例です。天吊りヒンジによる軽快な開閉構造に加え、マグネットローラーの採用でストレスのない使用感を実現しています。
一見シンプルながらも、ヒンジの取付精度や裏面補強の処理など、設計・製作の手腕が試される作図です。
応援、宜しくお願いします!
↓ ↓ ↓
デザインランキング
にほんブログ村