
■サイズ
| ■仕様 |
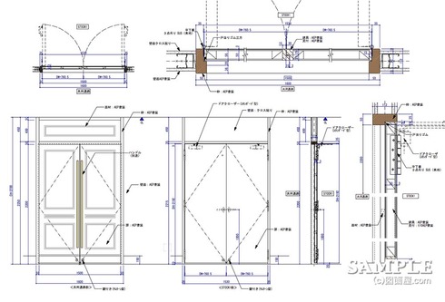
W1600×D112×H2250 図面参照 | 枠・建具:木工下地AEP塗装仕上げ |
■備考
|
この両開きの建具図は、ごくごく一般的であり基本的なフォルムなのです。
作図初心者の方は是非覚えておいて下さい。
店舗環境の状況によって、今回の事例のように建具上の欄間が有る無しと言った場合があります。
ですが、建具自体のデザインは、基本型と考えてください。
後は,貴方なりのデザイン考えれば,多くのバリエーションは考えられると感じます。
作図能力がそれほど無くても、半日もあれば十分に描くことが出来るでしょう。
一度,トライしてみてください。
それではもっと詳しい説明に入りましょう。
続きをどうぞ!
頑張ってます!↓ ↓ ↓
デザインランキング
にほんブログ村
●スポンサードリンク
こういった両開きの建具の場合は、建具のどちらか一方が戸当たりとなりますので、合決り(あいじゃくり)加工を意識してください

ただ、相ジャクリだけでは不安定なので、普通の親子建具と同様に片側の建具にフランス落としなどを取り付けます。
また、まれに今回の事例のようにそれぞれの建具に鍵を付けることもあります。
これは、安定感に繋がります。
建具図には、平面詳細図が必要になってきますので、以下に添付しておきます。
参考になさって下さい。

※平面詳細図
ここでヒントを一つ!
当サイト内の建具項目の図面を見つけて、建具枠を自分なりのフォーマットしてサンプルを集めて置けば、いざというときに役に経ちます!
私の場合は、フォーマットとなり得るものは、必ずつくるようにしています。
これで図面速度は,確実に上がります。
最後に,これも必須の断面詳細図の拡大版も添付しておきます。

※縦断面詳細図
建具図って、一見難しそうにも感じますが、日々の積み重ねできっと描けることが出来ます。
毎日のトレーニングを頑張ってください。
頑張ってます!↓ ↓ ↓
デザインランキング
にほんブログ村