| ■サイズ | ■仕様 |
W×D×H 図面参照 |
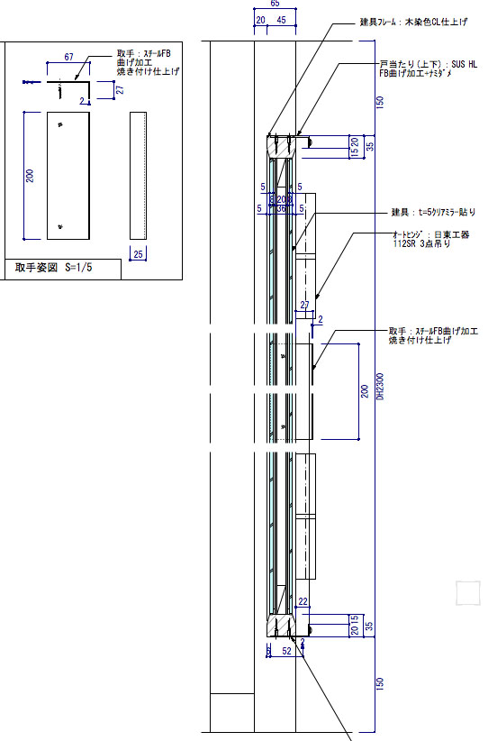
建具フレーム:木染色CL仕上げ 建具:t=5クリアミラー貼り |
■備考
|
建具図の事例はこれまで多く見てきましたがが、さすがにこれは珍しい!って感じました。
いままでミラー貼りのスイングドアなんて、聞いたことも無いし、描いたことなんて無かったような気がします。
友人の手伝いで描いたもので、何も考えずに描いていただけでした。
ブライダル関連の商品を扱うショップのようでした。
要は、フィッティングルームか、着替え室の出入り口の設置された建具? なんてお気軽な気持ちで描いていましたね。
しかし、良く考えるとこれって「危ない」気もします。
一体、なんでこんなもの考えたのだろう、俺の友人は.........。
ではでは詳しい内容は、続きを!応援、宜しくお願いします!↓ ↓ ↓
デザインランキング
にほんブログ村
●スポンサードリンク思うに、壁面なんかに取り付けてある姿見用のミラーパネルをアレンジしてドアにしたって感じですが、木製パネルはちょっと軟弱な感があります。
私だったら、きっとスチール焼き付けで仕上げていたと思います。
まあ、この図面をそのままスチールに描き替えることは問題ありませんし、角パイプの寸法も既製品があるのでアレンジは可能とみました。
何故に木製は良くないかってことですが、使用頻度の多いスイングドアの場合、やはりヒンジ取り付けが、
木製だと耐久性に疑問を感じます。
ただ、スチールだと重量も気になると言えば気になりますね!
このプランのように、木フレームだったら素材をかなり堅いものにしなければなりません。
が、これもやはり可能だと感じます。
私は描くだけの作業で参加しましたが、事前に上記したことは問題視されていたような気もします。
いずれにしても、木製でも、スチール製でも製作は可能と判断しました。
最後に、詳細図を添付しておきますので、見聞してみてください。

上の図面は、建具枠に戸当たりを付けた状態です。スチール加工したものにクッション材のナミダメを付けています。

こちらは、建具の縦断面図ですが、ここには扉の取っ手が確認できます。
押してはいるのは、可能ですがその反対は、引かなきゃなりませんからね!
事前にヒンジの種類も考慮しても良かったのではって言ってやりましたが、いずれにせよヒンジは重量用を使うことをお勧めします。
最後に、前述した「危ない」事については、答えが無かった。竣工後にも友人に問いましたが答えは返ってこなかった。残念!
応援、宜しくお願いします!↓ ↓ ↓
デザインランキング
にほんブログ村