
| ■サイズ | ■仕様 |
W754×D103×H2473 図面参照 | 本体:木下地化粧板仕上げ 枠:木下地化粧板仕上げ 押し手:SUS HLプレート |
■備考
|
今回の作図事例は、ストックなどに使用されるごく一般的な建具図です。
この建具の考え方は、「押して入る」「引っぱって出る」が基本です。
ここで思う事は、店内から見たストックルーム用の建具を想像してみてください。
あまり、
見せたくない部分ですね。
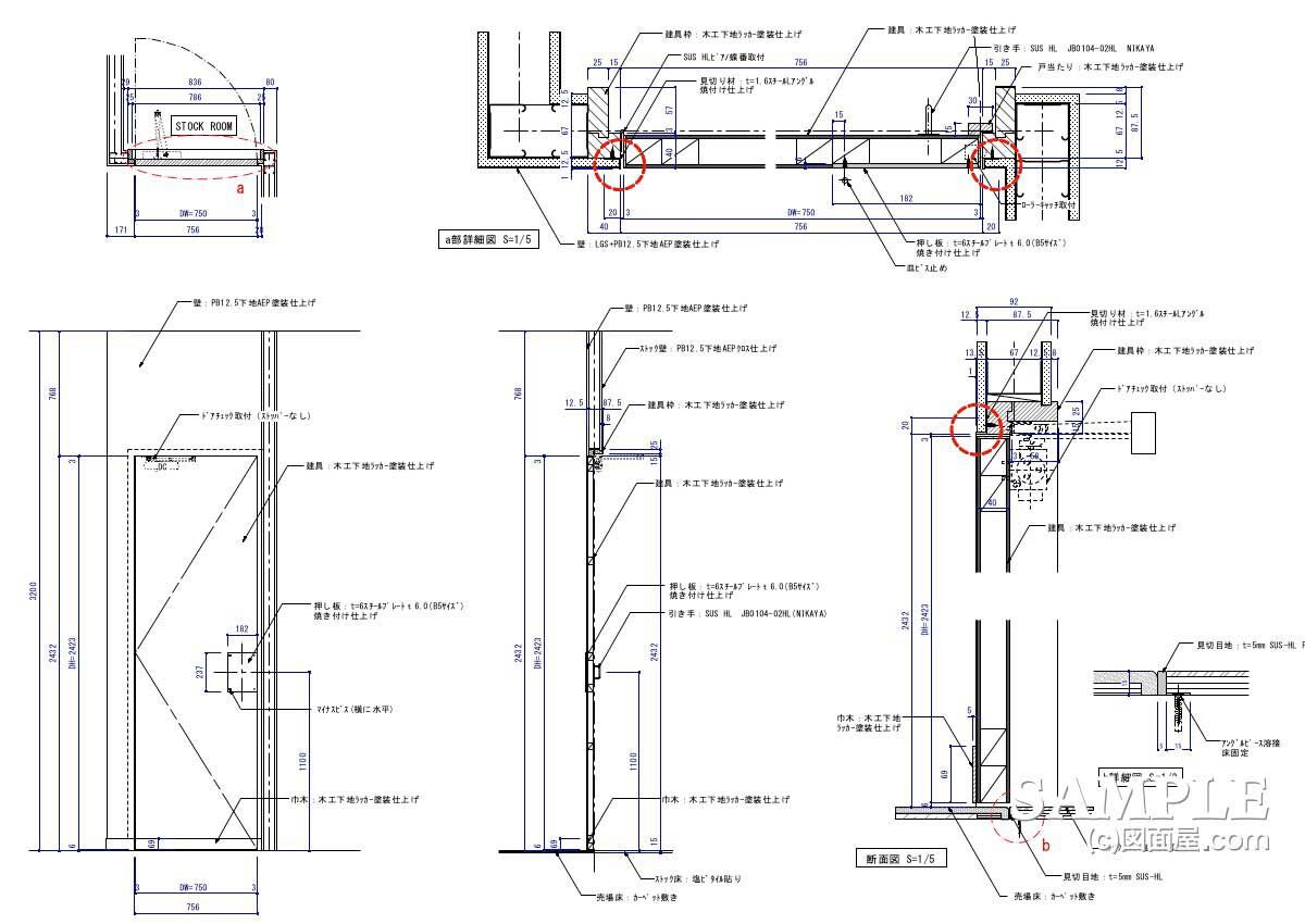
だから、デザインの施しは必要ないとして、出来るだけ目立たない方が良いと判断。
豪華なノブは無く、ここではスチールの押しプレートを取り付けました。
もちろん、出入口ですから、ここの入ったスタッフのために内側には引手となるモノを取り付けます。
そして、もっと大切なことは、建具の枠です。
これについても出来るだけ、見せない策を考えました。
出来れば、建具枠と壁面が同面になっているのが理想的です。
結果、フラットバー(FB)やLアングルなどを見切り材として取り付けました・
ではでは詳しい内容は、続きを!応援、宜しくお願いします!↓ ↓ ↓
デザインランキング
にほんブログ村
●スポンサードリンク
上の平断面面詳細図をご覧ください!
左右の赤のマーキングを入れてますが、ここには壁面の見切り材として、Lアングルを取り付けます。
これで多少なりとも、"枠"は目立ちません。スッキリしました。
次に、以下の縦断面詳細図を見てください。

こちらも、前述した内容と同仕様です
この三方枠が、壁面に溶け込んで、枠の存在は多少なりとも目立たなくなったと思ってます。
最後に、建具上部のドアクローザーを見て下さい。
このドアクローザーは,、通常の呼び名としては「ドアチェック」とも呼ばれています。
よく非常扉(鉄扉)に取り付けてあるので、確認してみて下さい。
そして、
この納め方は、よく目にしますので、それぞれの店舗で探してみてください。
手間と、コストがかかるため、高級店などで多く見られます。
以上です。世田和でした。ほいたらね!
応援、宜しくお願いします!↓ ↓ ↓
デザインランキング
にほんブログ村