
今回は、アパレルショップには必須のフィッティングルーム(以後FR)についてお伝えしましょう。
FRといっても、身障者対応のFRです。
この事例は、百貨店のテナントに増設されました。
通常のFRと何ら変わることはありません。
ただ、身障者用のFRは車椅子を使用されるケースが多いため、
十分なスペースを確保するが必要です。
そして、店内レイアウト上でもFRまで導線に破棄を配らなくてはなりません。
出来れば、障害物が無い箇所に計画することをお考えください。
その他、必要な要素として!
FR内には、必ず手摺りやベンチシートの設置も必須です。
この手摺りとベンチシートの位置関係は障害者用トイレなどを参考にすると良いでしょう。
その他、一番大切なことは、出入り口のドアです。
続きをご覧ください!応援、宜しくお願いします!↓ ↓ ↓
デザインランキング
にほんブログ村
●スポンサードリンク
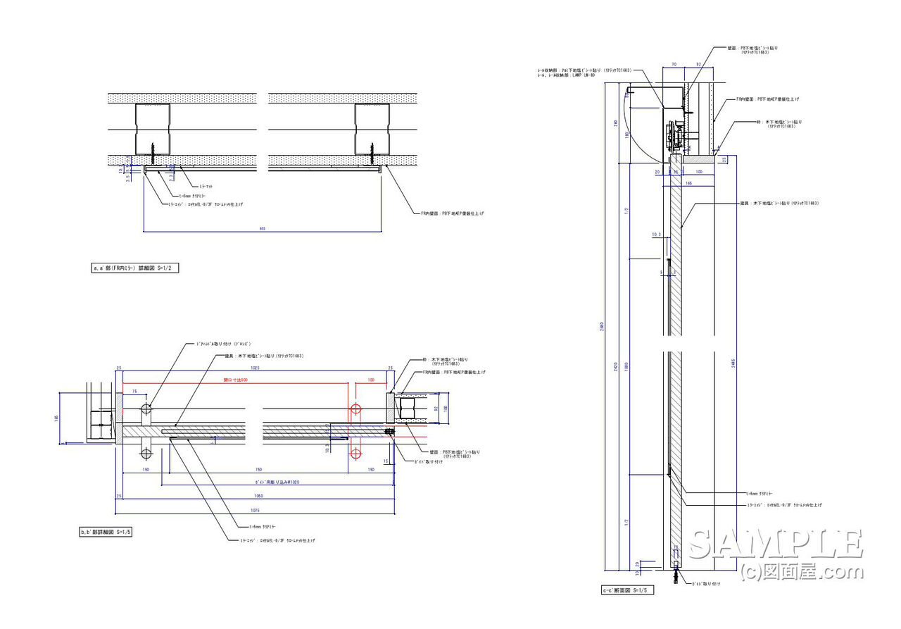
以下が、今回使用した『半自動引き戸』の作図です。
半自動式引き戸の建具図とミラーのエッジ部分の詳細図です。
このドアを施している店舗は多くはありません。
ただ、この実物件は、毛皮などを扱う高級店と言うことあって取り付けました。
引き戸自体には、特記することないのですが、上部のレールと床面のガイド位置には注意が必要です。不明な点は、メーカーのカタログなどで取り付け位置を確認しながら作図を進めてください。このタイプの引き戸はレールのメンテナンスの為上枠部分を開閉出来る様にしなければなりません。メーカーによってはメンテナンスカバーもセットになっているものも有ります。以上です。
応援、宜しくお願いします!↓ ↓ ↓
デザインランキング
にほんブログ村