
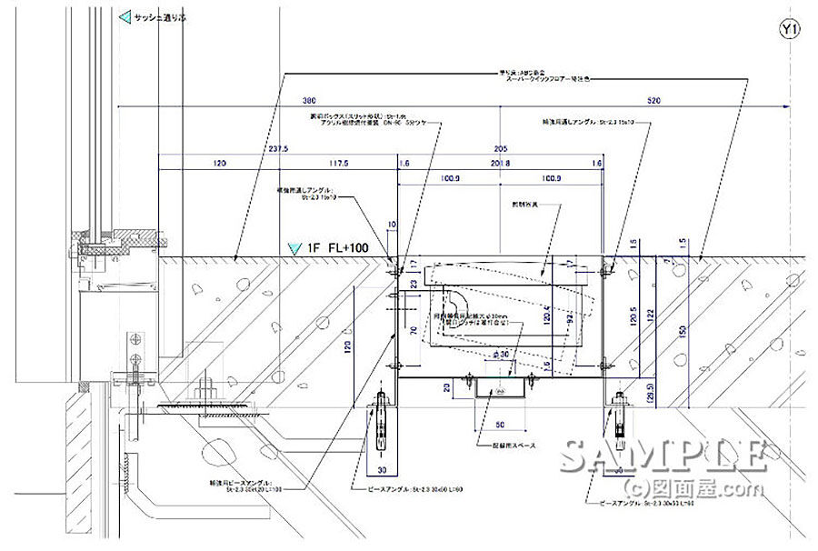
今回の作図事例は、床面に間接照明用に埋設型照明ボックスを取り付けました。外向きのショーウィンドでは、良く使われてるので見かける事も多いと思います。
LEDやFLなどの間接照明に替え、強化ガラスの蓋を追加すれば、スリット状の演出照明にも応用出来ます。
納め方については、それほど難しい所は特にありません。
ただ注意しなければならないのは、深さと幅です。それでは、その深さと幅について、もっと説明を加えましょう。
続きをご覧ください!
頑張ってます!↓ ↓ ↓
デザインランキング
にほんブログ村
●スポンサードリンク
まず、アッパーライトが完全に床仕上げライン内に納まる事が条件です。
それと、角度調整をするためにクリアランスが必ず必要です。
また、スラブも必ずしも水平ではないで、高さ調整が出来るスペースも設けなければなりません。
ですから、アンカーボルト固定したアングルピースを使って調整出来るように浮かしています。
この際、ビス穴の開口サイズも円形でなく楕円系にしておくと良いでしょう。
以下の図面は、照明ボックスの平面図を添付していますので参照下さい。

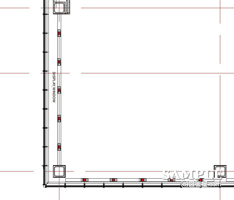
この物件は、売り場面積がかなり大きな物件だったので、ショーウィンドも多く取っています。
また、店外に大きな通路が2面あるのでこの通路に沿ってL型にもしています。
これだけの面を使うと相当の訴求力が期待出来ますね。
製作上の注意点として!
これだけ長いボックスだと搬入と焼き付ける釜の大きさによって分割も考えておかないといけません。
この場合、ボックスの外側にフラットバーを溶接してボックス内側からビス止めすると良いかもしれません。
頑張ってます!↓ ↓ ↓
デザインランキング
にほんブログ村