
■サイズ
| ■仕様 |
W3000×D2100×H2200 図面参照 | 壁面:LGS+PB下地クロス仕上げ 引き戸:木工化粧板仕上げ
|
■備考
|
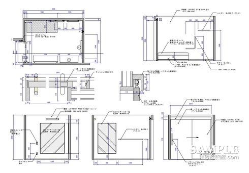
今回は、店舗設計者として必ず知っておいて欲しいフィッティングルーム(以下FR)についてお話ししましょう。
上記の作図事例は
身体障害者用FRの姿図と断面図です.
ここには、
必要不可欠な要素が詰まってますのでよく理解してください。
また、百貨店やショッピングセンターなどの大型商業施設では、必ず設置される
FRですから、知らないとヤバいですよ!
ここでのポイントとなる部位は2カ所です。
それでは、
続きをご覧ください。
応援、宜しくお願いします!↓ ↓ ↓
デザインランキング
●スポンサードリンク

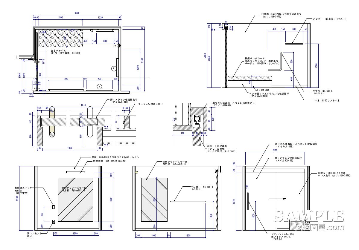
設計者としての注意点は、
引き戸の仕様とFR内に手摺の設置が必要となります。特に、引き戸に関しても半自動で閉まる引き戸レールを使用する事が必須です。
そして、設計時に注意すべき点は引き戸の開口寸法と内部の広さですね。
上記の詳細図には、
ワイド1000mmを有効開口としています。
開口寸法には、車椅子が通れる程の有効寸法が必要で、FR内部も車椅子が回転してもどこにも当たらない程度の広さが必要です。(平面図参照)

ちなみに、上の詳細図は
レール取り付けの断面図となりますので、理解しておいてください。
本来は、もう少し詳しく描くのですが、半自動で閉まる引き戸レールについては、
深い知識が無いので文章で指示しました。(反省!)
最後に、ミラー付近とベンチ付近には
必ず手摺りを設置することが通例となっています。身体に不自由な人へはこれ以外にも機能がありますが、今回は上記の事だけをまず理解ください。
以上です。小林でした!
応援、宜しくお願いします!↓ ↓ ↓
デザインランキング