
■Data
|
| ■サイズ | ■仕様 |
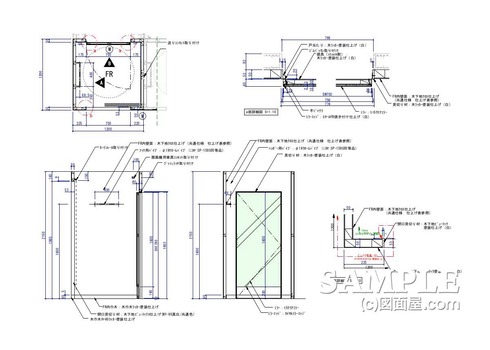
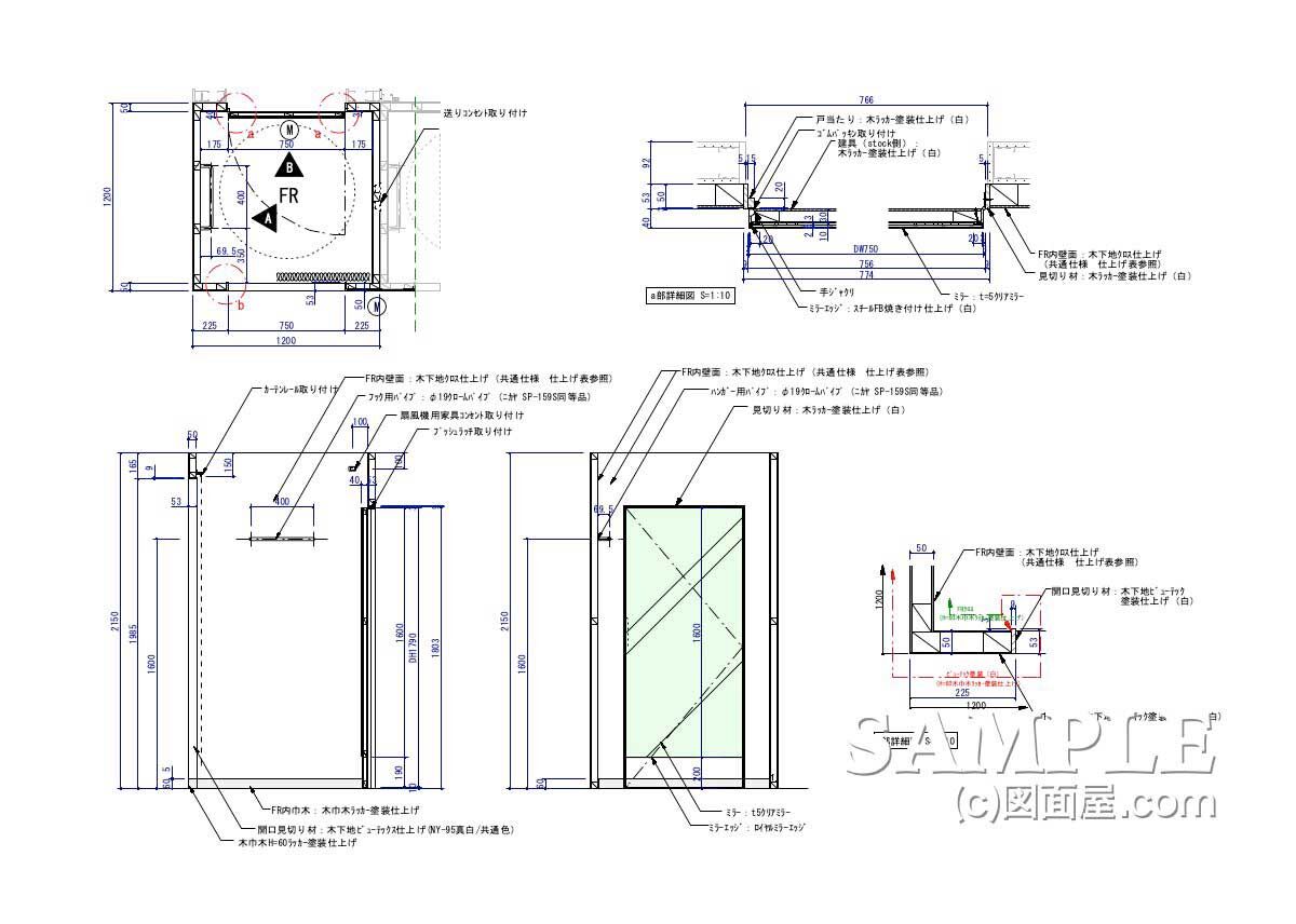
2100×1200×1200
| 木パネル組+クロス仕上げ |
■備考 |
置き式フィッティング(以下FR)什器で、しかも移動可能というクライアントの依頼で考えましたが、よくよく考えてみると簡単には移動は不可能なようですね。(汗)
パネル組は悪くはないのですが、やはりここは、軽鉄下地+PBボードをお進めします。
やはり移動するには、それなりの専門家(大工)が必要だと思われます。素人が何人かで移動しようとしてもちょっと無理があります。
「なぜこんなFRを設計したんだ?」って声が聞こえそうですね。
次に、目を引いたのは、FR内にミラーパネルの建具が存在することです。
深い意味合いは分からずのまま、竣工を迎えました。
それでは、この事例に必要な詳細図を添付しておきます。
続きを!応援、宜しくお願いします!↓ ↓ ↓
デザインランキング
にほんブログ村
●スポンサードリンク

まず、建具の平面詳細図は必須です。
これが無ければ、製作側に迷惑がかかりますので、心して進めてください。
図面仲間では、断面詳細図なる図は必ず描いているのですが、
平面詳細図を描く人は少ないと感じます。

次に、仕上の指示です。
これは、設計者の気配りのようなもので、描かない人は多くいますが、
うちのボスはこれを徹底しています。
仕上げ指示は大切なポイントです。現場ではこれが命と言っても過言では無いはず。
多くに職人さんは、この件で苦労しているそうです。
どうってことの無いことかもしれませんが、必須だと感じます。
最後に、作図的には一般的FRであり、内部での必要備品も備え付けられています。
設計段階で網羅しておきました。
注意すべきは、置き式→移動式なので壁面パネル組はしっかりとした材料で設計してほしい。
まあ、t=50mmもあれば充分でしょう。
前述した、FR内部のミラー貼り建具については、ストック部屋に通ずるものでした。
※注意点として、ミラー扉のヒンジは強固なものを選びました。
以上です。小林でした!
応援、宜しくお願いします!↓ ↓ ↓
デザインランキング
にほんブログ村