
■サイズ
| ■仕様 |
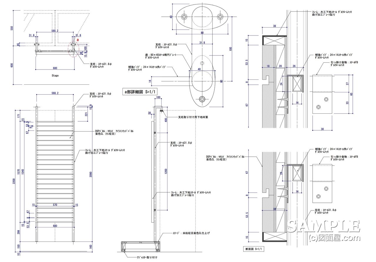
W×D×H 図面参照 | DSPパネル:アイラインウッドパネル染色CL(セン柾目) フレーム:スチール曲げ加工ダルクロームメッキ仕上げ 支柱:φ38.1スチール丸パイプダルクロームメッキ仕上げ |
■備考 ★
|
この什器事例は、通路面などに設置されたウインドディスプレイ什器の作図です。
平面図を見ていただければ、2本の支柱組が見られますが、この什器バックに店内側の什器が破線で描かれていますね。お分かりですか?
要は、店内什器の背面にディスプレイ装置を設置して、通路からの訴求効果を狙うという考え方です。
それでは、続きをご覧ください!
頑張ってます!
↓ ↓ ↓
●スポンサードリンク
まず、店内の背面什器に、引っ掛用の角パイプを溶接したスチールパイプの支柱を上部に固定します。
下部の固定はステージが設けられていますので、ステージトップに固定します。
固定後は、二カ所の角パイプに、フックが付いたシャッターパネルを設置するという仕組みです。

※縦断面図
このシャッターパネル什器は、主にシューズやスニーカーなどの専門店などでの仕様が多いようです。
実際、今回紹介しているディスプレイ装置もスニーカー専門店での事例です。
シャッターパネル設置後は、専用のパーツで商品を展示します。
パネルを取り外し、パーツを替えることでアパレル商品なども展示出来るので、用途は多様化できます。
シーズン毎にディスプレーのアレンジをすると、訴求効果は上がります。
最後に、支柱やパネルのフレーム仕様は、
ダルクロームメッキ仕上げといって、あまり耳にしない仕上げ方になっています。
ニッケルサテンに似ている仕上げなのですが、ややこしいので画像で比較してみました。
左側が
ニッケルサテンで右側が
ダルクロームメッキです。


※画像引用元:和光技研株式会社様
ホームページより
頑張ってます!
↓ ↓ ↓