
■サイズ
| ■仕様 |
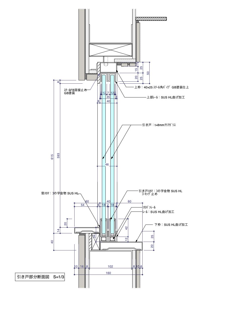
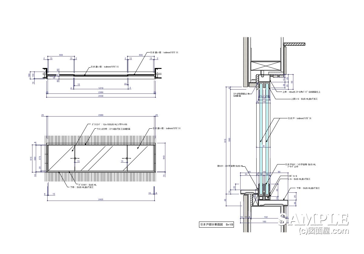
W2439×D150×H615 図面参照 | サッシュ3方枠:スチール曲げ加工GB塗装 下枠:SUS HL曲げ加工 ガラスハカマ:SUS HL t=8mmクリアガラス |
■備考
|
今回は、食品売り場でよく見かけるガラス引き戸の事例です。特に、鮮魚売り場では欠かせないガラス引き戸です。
私も普段は見過ごしがちなこの建具ですが、実際描いて見たら、しっかり納めが出来たので投稿しました。
平面図と立面図は簡単に描けましたが、いざ断面詳細図となると厄介さを感じました。
しかしですね、サッシ枠とガラス戸の納めをゆっくり整理すると意外に、それも簡単に描けました。
ただ、時間はかかりましたがね!(笑)
それでは、覚えておく必要のある断面詳細図を!
ご覧ください!
頑張ってます!↓ ↓ ↓
デザインランキング
にほんブログ村
●スポンサードリンク

さて、上記の縦断面詳細図が、今回是非、覚えて欲しい詳細図です。
ややこしく見えますか>?
最初にするべきは、ガラスを支えてる上下のサッシ枠です。
まず、このサッシ枠とガラス引き戸と一体化になっていますので、そこだけを注目して理解してください。
次に、サッシ枠上下に付属している見切りだったり、補強材だったりを見てください。
それらは、あくまでサッシ枠を上手く納める部材となります。
その辺りをしっかり理解できれば、あなたにも描くことが出来ます。
また、すでに図面を生業にしている方は、
この断面図はとても汎用性がりますので、これさえしっかり理解できれば、その他の箇所にも応用できるはずです。もちろん、他の納め方も多くあります。
しかし、まず第一にこの納めを覚えて、それから多くの納めも覚えれば良いのではないでしょうか!
何でもそうですが、まず基本となることを覚えるのが図面屋さんの流儀です!
では、頑張ってください!
もし分からないことがれば、以下アドレスにお問い合わせください。
景純でした。
頑張ってます!↓ ↓ ↓
デザインランキング
にほんブログ村