
■サイズ
| ■仕様 |
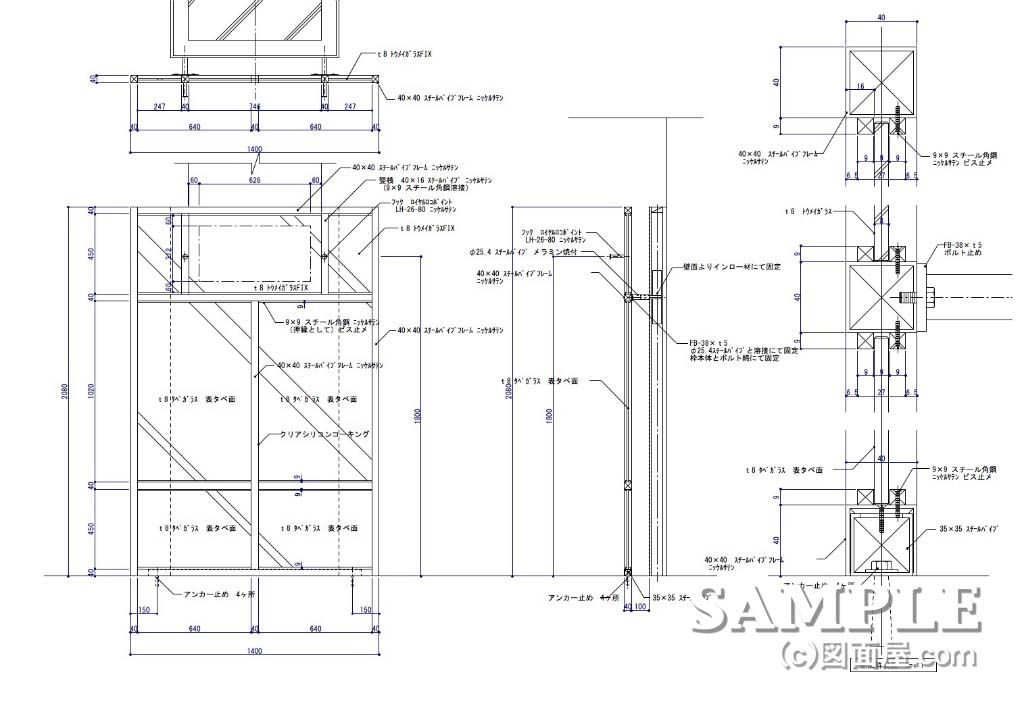
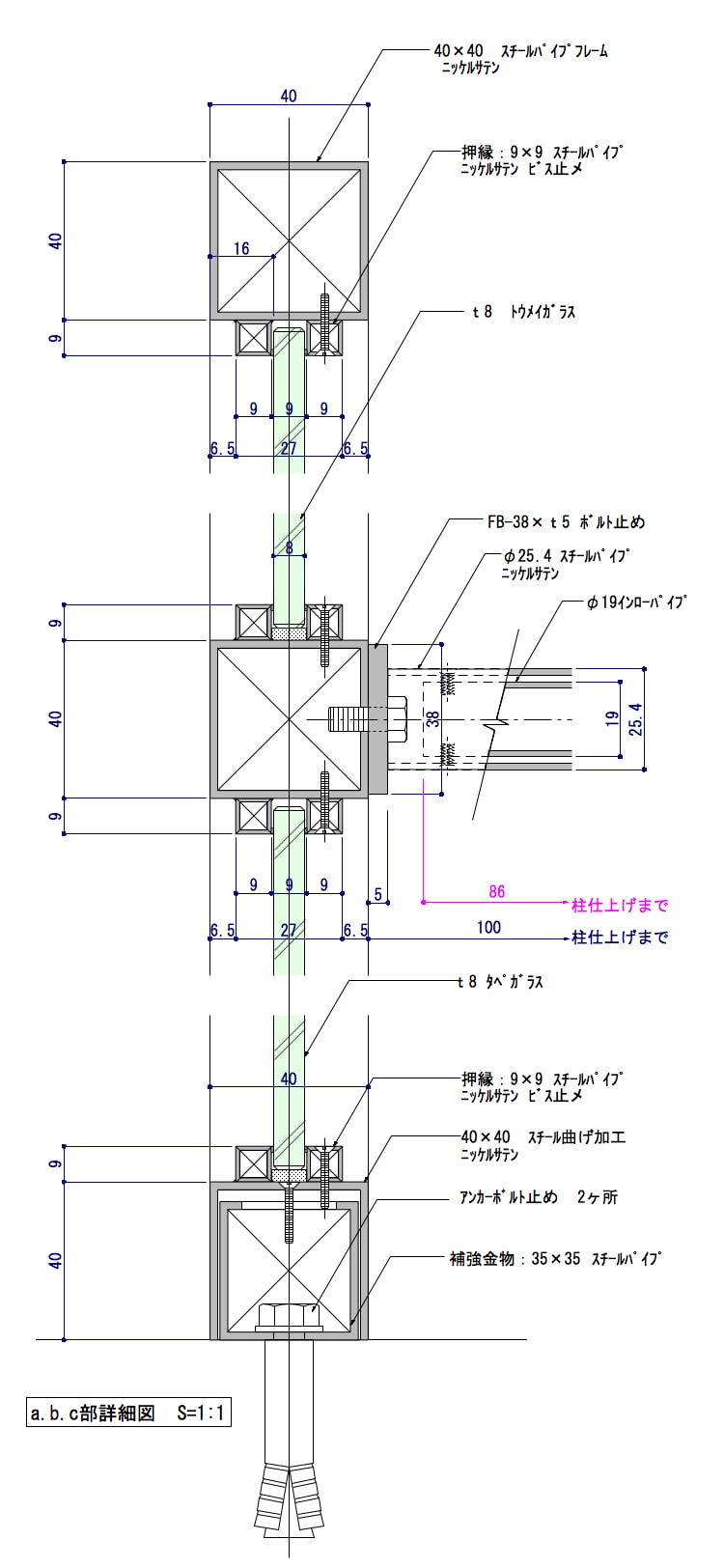
W1400×D140×H2080 作図参照 | サッシュ:40×40スチール角パイプ焼き付け仕上げ スクリーン:t=8mmタペガラス、クリアガラス |
■備考
|
この作図事例は、柱前に設置されたガラススクリーンの姿図と断面詳細図です。店頭の
ディスプレーパネルとして使用しますが、高さもあるので透過性の持たせました。
スクリーントップに一点掛けが2本あります。商品をコーディネートしたものをディスプレーして、お客様の訴求を図ります。
このスクリーンにも壁からの持ち出しパイプを使って補強を取っています。ここで
注意点を1点上げるとしたら、柱面から持ち出しインロー式のパイプの長さにあります。では、その長さとは!
詳細は、
続きをご覧ください!
応援、宜しくお願い致します。 ↓ ↓ ↓
デザインランキング
にほんブログ村
●スポンサードリンク
基本的に
インローパイプの長さは
持ち出す奥行き寸法の半分以上を目安として下さい。短すぎると後で
ビス固定が難しくなり、場合によっては抜けてしまう恐れもあるからです。
上のサイズに気を付けてください。
続いて、
スクリーンサッシュについて、説明を加えます。

この納めは、ごく一般的なものと考えてもらって結構です。また、ガラスサッシュの基本的な納め方といっても良いでしょう
床面にはベースとなる
35×35の角パイプをアンカーボルト止めして、その上にサッシュを被せる手法をとっています。
但し、施設によっては床面へのアンカーボルト止めが規制されて不可になっている場合もありますので、施設側に確認が必要です。
最悪の場合は、
カールコンとビスにて代用するのですが、アンカーより強度は落ちますので、納まりを考え直し、強度を上げる案を練り直すことが課題となります。
私の場合は一度、業者さんと打ち合わせをして、彼らの指示でもう一度、図面を描き直すようにしています。とても厄介な箇所です。
固定物がしっかり止まっていなかったら竣工後の日々が不安になりますからね!応援、宜しくお願い致します。 ↓ ↓ ↓
デザインランキング
にほんブログ村