
■サイズ
| ■仕様 |
W900(650)×D42×H2550 図面参照 | サッシュ:SUS鏡面曲げ加工 スクリーン:t=12クリアガラス+タペシート貼り |
■備考
|
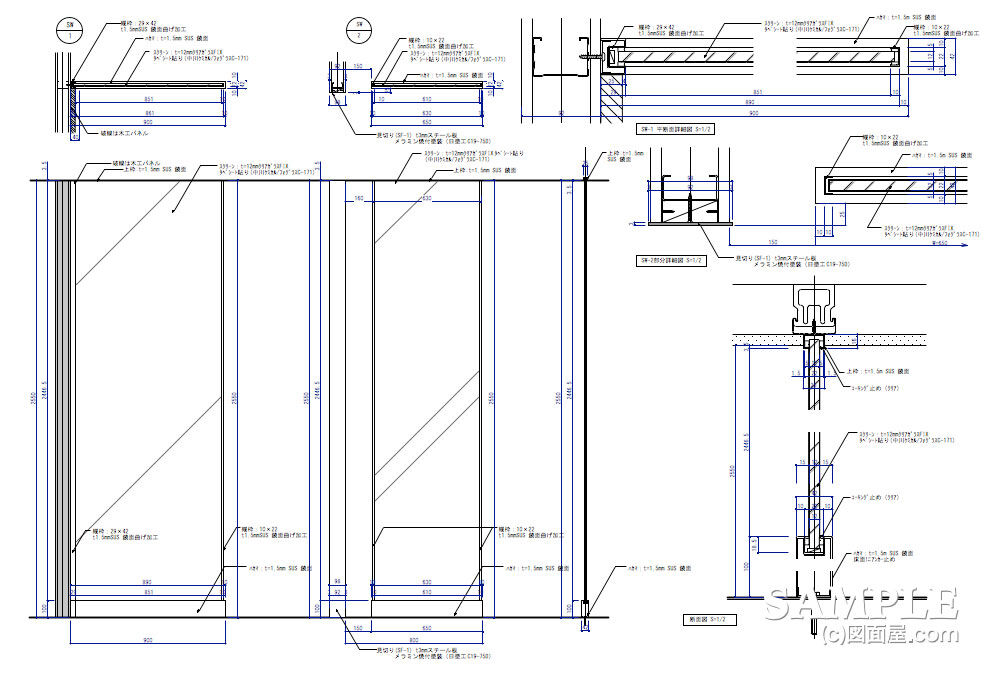
この作図事例は、ガラススクリーン(パーティション)の姿図と断面図及び各詳細図です。
床、壁、天井の3箇所で固定するタイプと、床、天井で固定する2種類のガラススクリーンです。
どちらも、汎用性がありアレンジも可能です。
しかし、必要な詳細図は少し厄介かもしれません。
ただ、これを覚えてしまえば、いざという時に描くことが出来ます。
このようなタイプのガラススクリーンは、商業施設などでの使用頻度は高く、
確実に作図の必要性は高まります。
さて、三面図を見ればすぐに理解は可能でしょう。
それでは、その詳細図などを画像を交えながら進めていきます。
続きをご
覧ください!頑張ってます!↓ ↓ ↓
デザインランキング
にほんブログ村
●スポンサードリンク
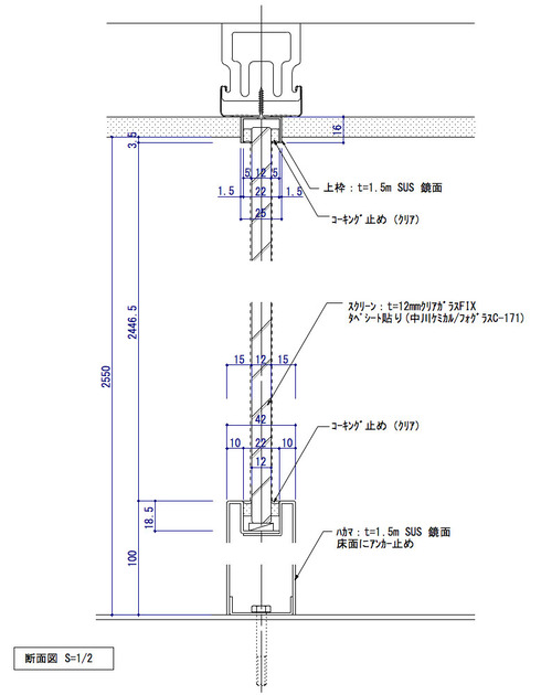
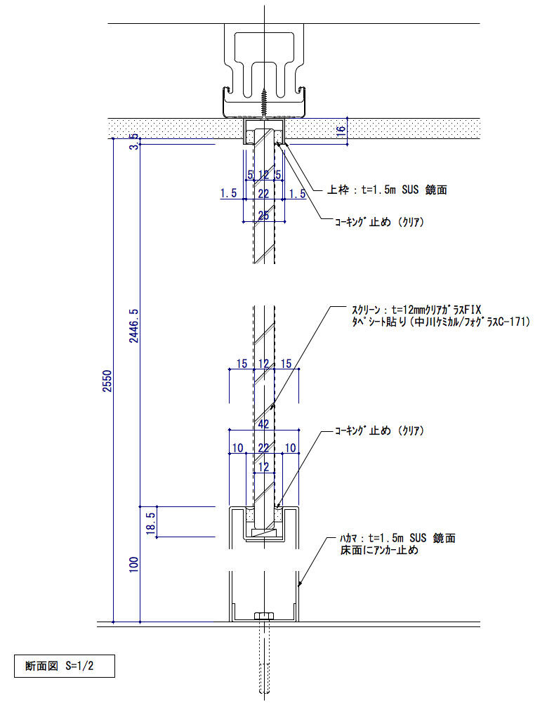
納めを説明しましょう。
以下の作図を見てください。

まず、天井面のサッシュはビス止めになっていますが、
天井部の納めは、安全面を考慮してコの字アングルをやや天井部に埋め込むことにしました。
なんせ、12mmもあるガラスなので..........。
縦枠は現場でガラスと一緒に上げ落としで差し込み、
コーキング止めにしています。
3箇所で固定するスクリーンについては、この事例のように上げ落とし(ケンドン式)にする方法と、別の方法があります。
それは、サッシュの側面からガラスを差し込んで最後に蓋をする方法です。
以下の作図から読み取れます。
画像右下のですが、読み取れますか?

若干、いい加減いも見えますが、シンプルでフレームレスに近い納めです。
私はけっこう好きです。
長々とおつきあいありがとうございます。
頑張ってます!↓ ↓ ↓
デザインランキング
にほんブログ村