■図面初心者の方はまずこの図面を覚えて!

■サイズ
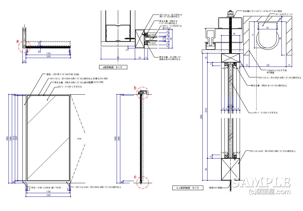
| ■仕様 |
W1200×D50×H2400 図面参照 | フレーム:スチール角パイプ焼き付け仕上 棚板:t=10トウメイガラス |
■備考
|
一般的なガラススクリーンの図面でが、
シンプルでいいですね!この図面事例では、スクリーンの後面にロールカーテンがついていますが、この仕様に関しては、ここでは割愛させていただけいます。
さて、一般的にこのようなガラススクリーンの納めの場合、天井固定にはサッシュフレームにボルトを溶接し、そのボルトを天井貫通させナット締めにします。
床面に関しては、カールアンカーにて固定しますが、本来ならばアンカーボルトで固定されるのが一般的ですが・・・・・。
それでは、
続きを!頑張ってます!↓ ↓ ↓
デザインランキング
にほんブログ村
●スポンサードリンクガラススクリーンの縦断面詳細図を載せてみましたが、ご理解できますか? ここまで大きくすればいいでしょう?
先ほど説明した納め方が手に取るように分かるのと、サッシュのガラスの取り付け方法なども読み取れますね!
難しくはありませんよね!
話がそれましたので戻しますが、このガラスサッシュの固定方法についてお話ししましょう。
物件によっては床面にアンカーボルトを打ち付ける事が出来ないケースもあります。
例えば百貨店や大型賞牛施設のテナントです。
最近は、テナント側に考慮して相談に乗ってくれる内装管理室もあるので、私は交渉することにします。
どうしても難しい時は、最低でもアンカーボルトの代わりに、カールアンカーで固定をお願いします.
カールアンカーは、ボルトアンカー程の強度がないので軽量物を固定する場合に使用することが、よくありますが、今回もこの納めで処理しました。
最後に平面詳細図も添付しておきますので参考になさってください。

壁面との取り合いがよく分かります。
5mmのちりが読み取れます。この納めは一般的なので良く理解して自分のモノとしてください。
このちりは良く出てきます。
頑張ってます!↓ ↓ ↓
デザインランキング
にほんブログ村