
■サイズ
| ■仕様 |
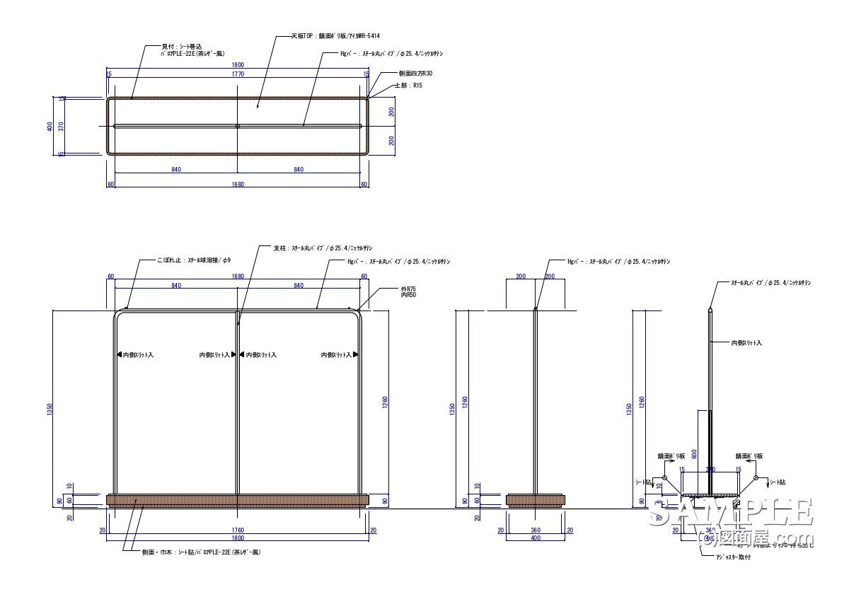
W1800×D400×H1350 図面参照 | 支柱・HGバー:スチールパイプニッケルサテン仕上げ ステージ:木工下地シート貼り |
■備考 ★
|
【作図解説】この図面は、W1800サイズの2連式シングルハンガーラックの姿図・断面詳細を示したものです。
特徴的なのは
支柱部分にスリット加工を施している点で、基本のハンガーパイプに加え、追加のハンガーや棚パーツを後付けで取り付けることができる拡張性を備えています。
高さ可変機能は持たないものの、表示物や用途を限定することなく、什器本体の汎用性を高める意図が読み取れます。
ベース部には十分な厚みの木工土台を用いて安定性を確保し、アジャスターで床レベルへの微調整も可能です。
【作図ポイント】
・
スリット加工により、追加パーツ(棚・ハンガー)の設置が可能な設計。・支柱・バーはスチール
φ25.4丸パイプ
/ニッケルサテンにより強度と高級感を両立。
・ベース部分の木工化粧仕上とアジャスター付構造で安定性も確保。
・図面上は曲げRやパイプ位置など、施工に必要な細部が正確に記載されている。
応援、宜しくお願いします!↓ ↓ ↓
デザインランキング
●スポンサードリンク【まとめ】
子供服売り場という軽量衣料を想定した展開場所に適した什器です。ハンガーラックとしてはシンプルな構成ですが、スリット加工による機能拡張が大きなポイント。
陳列の幅を広げつつ、設置現場の柔軟性も担保する設計となっています。
図面も明快で、ハンガー什器の基本構造を学ぶ上でも好例です。実際の運用時には棚の荷重や転倒リスクにも注意が必要ですが、使い方次第で多用途に展開可能な什器といえます。
※同じ2連式のシングルハンガーラックの記事が下記にありますので参考にどうぞ
☆2連式SHR(シングルハンガー)什器図☆
⇒ 詳細はこちらから
応援、宜しくお願いします!↓ ↓ ↓
デザインランキング