| ■サイズ | ■仕様 |
| W1250×D550×1250〜1500 | 木部:ナラ材染色CL仕上げ 金物部:スチールチヂミ塗装 |
■備考 *1999.01作図 業態:紳士服 |
【作図解説】
この什器は、GMSの流れが従来型の大量陳列から
「お客様の見やすさ・選びやすさ」を重視する方向へ変わり始めた時期に手掛けたメンズスーツ売場用のものです。
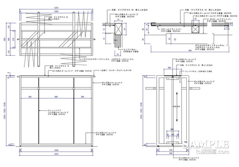
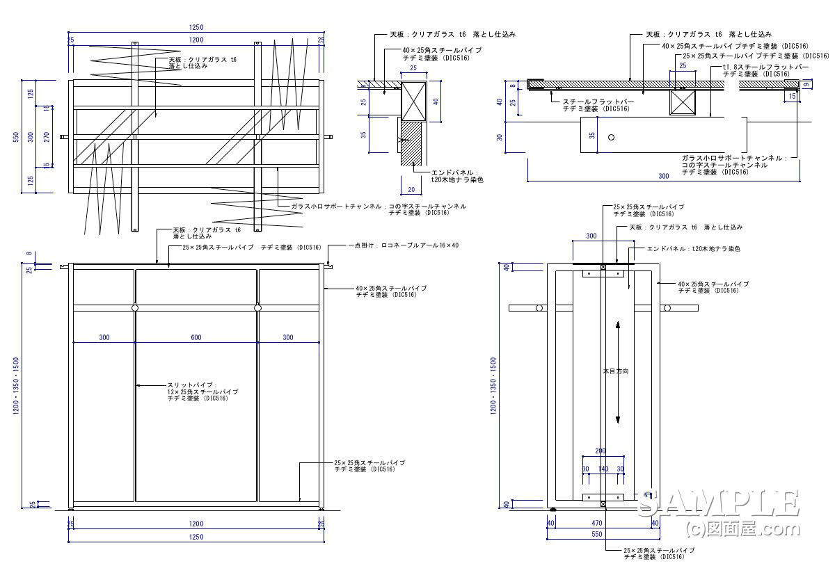
既存什器の機能は残しつつ、左右に角パイプフレームを加えてディスプレイ性を高めています。また、VMDの考え方を取り入れ、什器の高さを3段階に設定しました。
ファサード側に低い什器を置き、奥に進むほど高さを上げることで、
売場に奥行とリズムを与え、自然と視線が誘導される構成にしています。
それでは続きをどうぞ!
応援、宜しくお願いします! ↓ ↓ ↓
デザインランキング
にほんブログ村
●スポンサードリンク【作図ポイント】
スーツは重量があるため、スリットパイプに掛かる荷重が大きくなる点が最重要ポイントです。
この什器で採用しているスリットは軽衣料向けに近い印象で、長期的な使用を考えるとやや不安が残ります。
より太いスリットを採用するか、スリット間に意匠パネルを挟んで補強する方法が現実的な改善案になります。
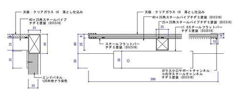
もう一つの課題は、左右のエンドパネルの固定方法です。部分詳細図ではフラットバーがフレームと接する面が少なく、什器の移動やディスプレイ替えなどの小さな衝撃でも弱点になりやすい構造です。
改善策として、エンドパネルを支えるフラットバーをL型にしてガラス天板の受けと兼用させれば、固定強度が一気に上がり、意匠的にも自然な収まりになります。
以下は、この事例を描くに当たって重要な納めとなっています。
是非、理解してください。きっと貴方の役に立つと考えます。
【私感として】
売場の考え方が大きく変わり始めた時代ならではの什器で、
「見やすさ」「手に取りやすさ」を実現しようという意図がしっかり伝わる仕上がりです。
高さ構成にメリハリを付けるVMD的アプローチは今見ても効果的で、スーツ売場の堅いイメージを軽減する役割も果たしています。
一方で、スリットやエンドパネルなど、実際の売場運用を踏まえた部分では改善の余地も見えるため、その“惜しさ”も含めて当時の現場感がよく出た什器だと感じます。
全体的には、時代の転換期らしいチャレンジ精神が見える、印象深い什器です。
応援、宜しくお願いします! ↓ ↓ ↓
デザインランキング
にほんブログ村