
■サイズ
| ■仕様 |
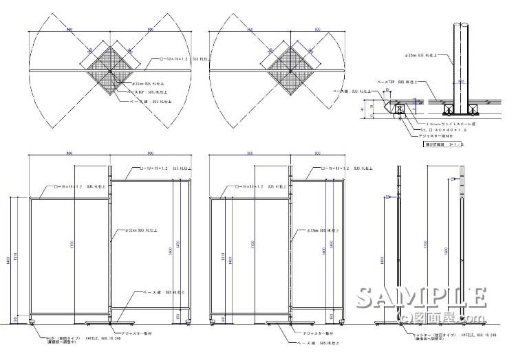
W1800(1500)×D360×H1750 図面参照 | ベース:SUS HL仕上げ 支柱:φ32 SUS HL丸パイプ ハンガー:19×19 SUS HL角パイプ組み |
■備考
|
今回は、非常に便利なシングルハンガーラックの作図の事例をご覧いただきましょう。珍しいと言っても装置の仕組み自体は、とてもシンプルです。
上の作図をじっくり見てください。支柱を軸として両側のパイプハンガーラックが、回転可動する構造になっているのです。まさに、回転式シングルハンガーラックです。
この作図事例では、パイプハンガーの長さを変えた2タイプの什器が、描かれていますが、断面図は全く同じです。ですから、作図上では、片方の断面図だけで充分通用します。
回転させる手法は、インローパイプとボルトを使った方法ですが、肝心の詳細図が表現されていないので、その仕組みを説明しますので、続きをご覧下さい。
頑張ってます!
↓ ↓ ↓
デザインランキング
にほんブログ村
●スポンサードリンク
それでは、説明しましょう。
簡単に言うと、ハンガーラックの支柱の中に軸のガイドとなるパイプを溶接し、そのガイドパイプ内にボルトを貫通させて回転させるようになっているのです。
丁度こんな形のパイプが支柱に仕込まれていると考えて下さい。以下の作図をじっくり見てください。
※この絵は株式会社ミスミのホームページより引用しています。
変わって、このシングルハンガーラックのベース断面図を見て下さい。
通常可動しないパイプハンガーが回転するので、ベースが動かないようにする必要があります。
その為、ベースの底面にはウェイト用として、6mm厚の鉄板を溶接しています。この手法は、T字ハンガーラックやスタンドミラーにも応用出来るので是非覚えておいて下さい。
尚、この回転式シングルハンガーラックの軸部分と同じ構造の断面図が、下記記事にありますので合わせて参照下さい。
⇒
回転式シングルハンガーラックの姿図と断面図
頑張ってます!
↓ ↓ ↓
デザインランキング
にほんブログ村