
| ■サイズ | ■仕様 |
W×D×H 図面参照願います | 本体:メープル材染色仕上げ
|
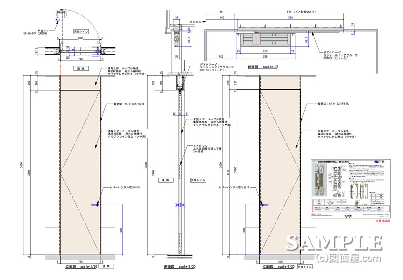
■備考 隠し蝶番取り付け |
過去から多くの建具図を描いてきましたが、希に今回の事例のような隠し蝶番を使った建具図を描くことがあります。
こんにちは、余田和です。
ホテルなど高級感が漂うスペースには、建具枠はちょっと興ざめする感があります。そんなとき、この納めはとても有効です。
しかし、建具には枠が必要です。
この納めは、その枠をわずか、5mmのスチールフラットバーの曲げ加工で処理をしました。そんな、納めを今日は説明しします。
応援、宜しくお願い致します。 ↓ ↓ ↓
デザインランキング
にほんブログ村
●スポンサードリンクこの現場では、壁面全てがミラーに覆われた設えでした。但し、建具は木製でした。ここで、隠し著を使ったのには、わけがありました。
前述した「5mmのスチールフラットバーの曲げ加工」が、もうひとつの役割を担ったのです。それは、ミララーの見切り材として役立ったことです。
下の作図を見れば理解できると考えますが。いかがでしょう!
隠し蝶番を使用して、建具枠を出来るだけ見せなくすると同時に、ミラーの見切り材としても活用する良き納めとは思いませんか?是非、覚えておいて欲しい考え方です。
納めについては、それほど難しくはないので、しっかり覚えておいてほしいものです。そして、自分のものとして、活用してください。
図面屋としても尊敬されますよ!

※平面詳細図

※ドアクローザー

最後に、今回の事例では店舗の全体環境を意識したので、扉がやけに背の高いものになっています。ということは、重量も半端ではありませんので重量用の隠し蝶番を手配していただきました。
尚、ドアクローザーの断面図と隠し蝶番のサンプルも入れておきますので参考にしてください。
余田和でした。
応援、宜しくお願い致します。 ↓ ↓ ↓
デザインランキング
にほんブログ村