まず、第1に現場調査が不可欠です。
墨出し図を描くには、まず現場調査による採寸が必要です。
現場の状態がどうなっているのかを、設計者は必ず把握しておかなければなりません。
でないと正確な墨出し図を描くことはできません。
人任せにするデザイナーが多い中、これだけは現場を自分の目で見て採寸した方がより正確な図面になります。
しかし、遠方であったりスケジュール的な事などの諸条件で出向けない場合は、第三者に依頼するのですが、その時は必ず現場写真と採寸資料をしっかり依頼することが大切です。
そして入手後、出来るだけ早く確認して、懸念があれば即、質疑書を送ります。
また、採寸に関してですが、何処を基準に寸法取りしたかも必ず確認する事です。
これは以外と忘れがちで、後々の作図段階で何処を調整寸法にするかで非常に重要となってきます。
若かりし頃、私も追い出し基準を決めずに採寸をしたものですから、墨出し図を描いたはいいが、寸法が全く合わなかった事がありました。
その結果、現場が始まってすぐ現場管理者から寸法が合わなくて、えらく怒られたことを良く覚えています。(笑)
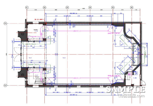
ですから、墨出し図を描く時には極力自分の手で採寸して、現状を把握してから作図する方が望ましい火と思われます。では、現場調査を終えて、且つ現状把握が出来たら実際に墨出し図を描いていきます。
ここで最も注意することは3つあります。
《その1》
現状壁面(躯体)前に新設壁を設ける場合、必ず現状壁面と新設壁の間にクリアランスを取って下さい。
これは現状の壁と床部分にモルタルを塗った後や耐火被覆が出ていることもあるのでこのクリアランスは必ず設けて下さい。

だいたい現状壁から100mm程度が新設壁の仕上がり壁になる程度が妥当でしょう。
《その2》
寸法の記入方法
寸法を追い出す基準を現状壁からとるのか、もしくは柱芯からとるのかですね。
又、これは施工会社によっても違ってくるのですが、新設壁の壁仕上りラインで追い出すのか、壁芯で追い出すのかといのもあるので、事前に確認をしておく方が得策です。
が、私は仕上がり壁を出墨として描くのが解りやすいかと考えます。
《その3》
最後に壁厚ですが、店舗の造作壁の殆どの下地は軽量鉄骨(以下LGS)組で出来ています。
このLGSは床と天井に取り付けてガイドの役割を果たすランナーと、壁の下地柱となるスタッドで構成されます。
そして一般的にLGSの壁厚を表現するときは90mmですが、正確にはそうではないんです。

上記の左の壁は、極一般的な基本図で描かれている壁厚で90mmですが、右側は本来のLGSサイズで描いた壁で92mmあります。
この2mmの誤差はランナーの部材の厚みなんです。
墨出し図ではこの2mmの誤差によって追い出しが狂う事もあります。
特にホテル関連の作図をするときは、この誤差で家具が入らないことがありました。
しかし、この誤差を見込んで現場サイドでの調整がありますので、あえて90mmの壁厚で描く事が多いかもしれません。
実際、残念な事えはありますが、長年も設計に携わっている人でも知らない御仁がいるそうな・・・・。
いずれにせよ「正確な図面を描く」というのであれば、この壁厚に関する事は必ず覚えておいて下さいね。