
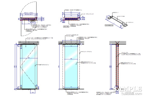
| ■サイズ | ■仕様 |
W×D×H 図面参照 | 本体: 内部FIXガラススクリーン:t8mm透明ガラス+ファブリック貼テンパードア:t12mm透明ガラス+内部飛散防止シート貼 ヒンジ:グランドヒンジ+グランドロック |
■備考
|
誰がこんなものを考えたんだって感じの奇妙な
「光のオブジェ」ですが、ブライダルではこういった訳の分からないことを考えるデザイナーさんも少なくありません。
まあ、本人としては空間でのオブジェであって一種のディスプレーだという意識でしょう。
そしてこの
「光のオブジェ」は、照明ボックスとテンパーライトドアの組み合わせとなっています。
このドアの開閉で光りの演出をコントロールしてバリエーションある空間を演出したかったと解釈しましょう。
さて、その真相はというと私は分かりませんが、施工図を描いてくれって言われたので愚直に実行!
頑張ってます!↓ ↓ ↓
デザインランキング
にほんブログ村
●スポンサードリンクドアが可動して内部照明ボックスが露出。確かに面白い演出であり、とても際立ったものに仕上がりそうですが、収めはとんでもないほどの難しさでした。
「描けと言われれば描きます。」が、ここはやはり専門家との協議で勧めたおかげで、なんとか仕上がりましたが私一存ではここまでの施工図は描けません。

見るたびにシビアな図面だと認識しますが、ここまで描いてあげれば施工業者さんも、ある程度理解できると感じます。
ただ図面を描き終えた後に再度、専門業者さんと打合せをして、よりよいで収め方についての協議は怠りませんでした。特に
金物とガラスの収めはとても苦労したことを思い出します。
しかし、この苦労も甲斐あって最近では多少の難しさもなんとも思わなくなりました。
施工図での収めは、難しいことに挑戦することが図面の上達につながります。
これは実感しています。「光のオブジェ」は、確かにアイデアとヒントがある興味深い造作事例ですが、実施施工図にはかなりの苦労がありまして、決して忘れることの出来ない図面となりました。
読者の皆さんも店舗設計を目指し生活の糧とするなら、難しい図面を克服してこそ未来があるとお考えください。
頑張ってます!↓ ↓ ↓
デザインランキング
にほんブログ村