
■サイズ
| ■仕様 |
W900×D42×H2550 W650×D42×H2550 図面参照 | サッシュ:各フレーム SUS鏡面仕上げ スクリーン:t=12mmクリアガラス+タペシート貼り
|
■備考
|
リクエストに応えて今回もガラススクリーンの図面事例です。
全くもって、一般的なガラスパーティションの図面事例ですが、この基礎的な作図を理解してみなさん育っていったようです。
最初は、やはり描きなれていないので、スチールフレームの部材の選び方や、ガラスとサッシュの収め方などは、大変かとは思います。
しかし、安心してください!
この図面は、半年レベルの経験者ですがしっかり描けていますね。図面で生計を立てようとする人はやはり頑張りますね。
では、順を追っていきますかね!
続きを......!頑張ってます!
↓ ↓ ↓
デザインランキング
にほんブログ村
●スポンサードリンク
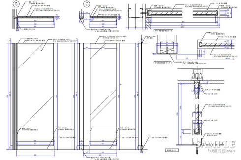
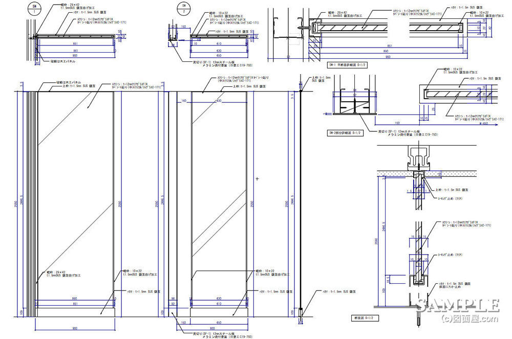
まず、この図面は病院やサロンにある、俗に言う「目隠し」的存在のガラスパーティションです。
ちょっと、意識すればあちこちで見ることが出来ます。
ここでは、二種類のパーティションをご覧頂いていますが、ご理解いただけますか>?
壁面からのと、単独でのパーティションです。
デザイン的な要素は、全くありませんのでわかりやすいでしょう。
図面的にも問題となる箇所は見当たりませんので、細部をチェックしてみましょう。

壁面からのパーティションですが、サッシュの部材は他のそれと若干違いがあります。
左のサッシュは壁面との絡みでワイドが大きくなっています。
右部は、ガラスカバー程度の簡易なサッシュで固定していますが、きっとサッシュの存在を見せたくなかったようですね。
ここで、見つけた不要物ですが、サッシュ右のクッション材は必要ありません。

こちらは単独で自立するガラスパーティションですが、こちらも両サッシュは、先ほどのと同仕様です。
OKですか>?
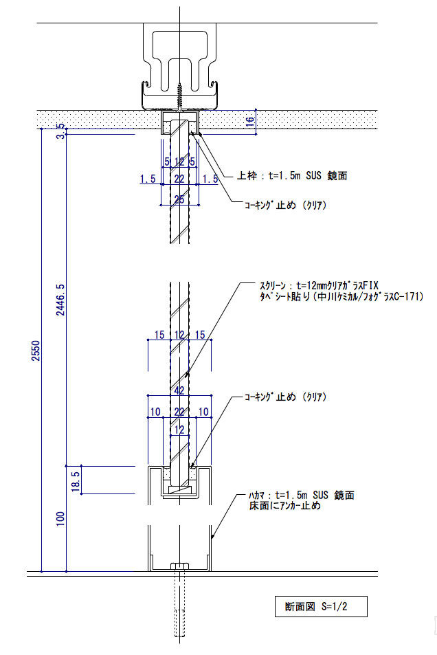
最後に、共通での縦断面図を載せておきますね!

最近では、この収め方が目立ちますが、これで十分だと感じます。
サッシュはあまり見せたくはありませんので、再度のそれは出来るだけ小さな部材を使用することをお勧めします。
天井での収めは、冴えていますね!

あっ、タペシートについてはメーカーサイトをご覧ください。(餅屋は餅や!)
⇒
タペシート
頑張ってます!
↓ ↓ ↓
デザインランキング
にほんブログ村