
今回は、納め方が異なる2つのスチール製のローパティションをご紹介します。
2つに共通しているのは、横格子フレームとその格子間の1部がパネルになっている所です。
この点をふまえてそれぞれの納めについて相違点を比較してみます。
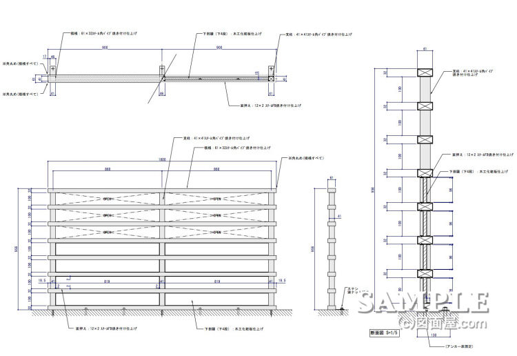
まずは、一つ目のパーティションです。
基本フレームは既製鋼材を使って組んでいます。加工手間とコストは比較的抑えられる納めと言えます。
ただ、パネル固定の所に不安が残ります。
ロの字に溶接した
2mm厚のフラットバー(以下FB)を押さえ縁にしているので、パネルとの掛かり具合が、上下共に
1mm程度になっているのです。
これでは、少しの衝撃でパネルがはずれてしまう可能性があります。
出来るだけ各格子の形状を統一しようとする意図はわかりますが、果たして安全かどうかは疑問です。
FBの厚みを太くすれば、掛かり具合が増して安全性は保たれます。
しかし、逆に意匠が損なわれてしまいます。
さて、どちらを優先すべきかは非常に迷います。
二つ目のパーティションについては
続きを読むからご覧下さい。頑張ってます!↓ ↓ ↓
デザインランキング
にほんブログ村
●スポンサードリンク
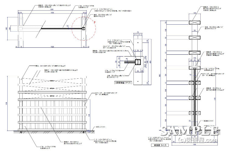
納めを説明しましょう。

二つ目のパーティションは、使用している鋼材が若干太めで、曲げ加工したものも含まれています。
そのため、加工手間とコストが一つ目よりかなり上がってしまいます。
ですが、腰部分のパネルは格子を貫通しているのでちょっとやそっとでははずれませんね。
これはパーティションを固定する前にパネルを底面から差し込んでおく納めで、とてもシンプルです。
各格子の見え方も統一出来ていて、意匠性も安全性も十分確保されています。
ただ、唯一の問題がコストでしょう。
2タイプのローパティションをご紹介しましたが、それぞれに一長一短はあります。
そして、どちらが正解と言う事ではありません。
どちらも工夫次第でコストを抑えられたり、安全性を確保出来たりもします。
ですから、仮に同じようなパーティションを設計する際には、今回の事例を参考図として活用して下さい。以上!
長々とおつきあいありがとうございます。
頑張ってます!↓ ↓ ↓
デザインランキング
にほんブログ村