
■サイズ
| ■仕様 |
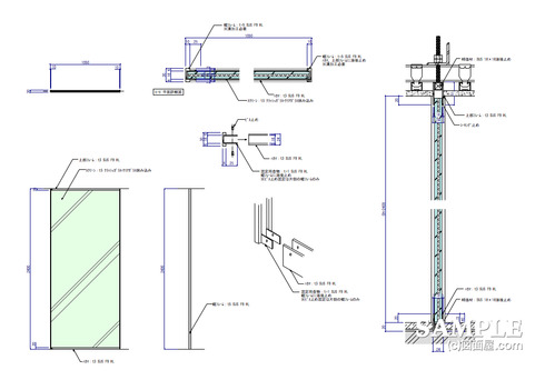
W1050×D30×H2400 図面参照 | 支柱:縦フレーム:t=5 SUS FB HL※溝加工 スクリーン:t5 クラッシュガラス+クリアガラス挟み込み |
今回ご紹介する図面は天地で固定するガラススクリーンの詳細図です。
これまでいろいろなタイプのガラススクリーンを掲載してきましたが、そのほとんどが押さえ縁でガラスを固定するものが多かったように感じます。
しかし、このスクリーンには押さえ縁を一切使用していません。
簡単にいうとガラスをフレーム差し込んでから固定する手法です。
スクリーンの利点としては、
フレームレスで空間をより広く見せることが目的です。
と言っても、最低限の強度と安全性は確保しなければならないのでフレームレスを出来るだけ小さいものを用いています。
まあ、ガラス自体もクラックガラスをクリアガラスで挟み込んだものなので、その厚みが成せる技かもしれません。(笑)
クラッシュガラスは多方向に光が屈折して、見る角度によって様々な表情に見えるので一昔前には結構流行ってましたね。
頑張ってます!↓ ↓ ↓
デザインランキング
にほんブログ村
●スポンサードリンクちなみにクラッシュガラスを使用した例はこんな感じです。
イメージ画像提供元:三井の賃貸/パークアクシス代官山納めのポイントは縦フレームの固定の仕方です。
簡単に言うと、片方の縦フレームだけにFBの固定金物を溶接しておいて、ガラスを差し込んだ後に上下のフレームとビスで固定する収めなんです。
注意すべき点は、ガラスと上下のフレームとの間の隙間にFBが入るだけの余裕を持たせておくことです。
最終的にはコーキング材を充填して完全に固定するので多少隙間が大きくても問題ないです。
上下フレームは角パイプにFBを溶接したシンプルなもので、片側の縦フレームもこれらに溶接しておきます。
ただ、ガラスを差し込む側(ビス固定するフレーム側)に障害物がないかどうかは確認しておいて下さいね。
頑張ってます!↓ ↓ ↓
デザインランキング
にほんブログ村