
■サイズ
| ■仕様 |
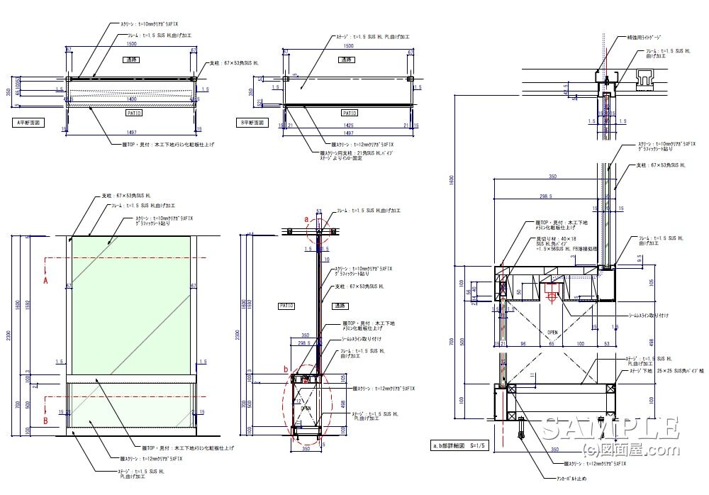
W1500×D350×H2300 図面参照 | スクリーン:t=10クリアガラス+グラフィックシート貼り 腰:木工化粧板仕上げ |
■備考
|
この作図事例は、腰分にディスプレースペースを設けたガラスパーティションの姿図と断面図です。
ちょっとひねった考え方ですが面白い!
多くは、ウェイティングやパブリックスペースなどこれをちょっと色めいた空間が出来ます。
腰部には演出照明を取り付けて、雑貨やインテリア小物などを置くよう考えました。
トップには雑誌や新聞、観葉植物等を並べておく事も出来ます。
フレームはSUS HLの角パイプを使用していてます。
固定については天井ではボルト止め、床面ではアンカー固定してあるので、強度のあるパーティションとなっています。
作図レベルは、やや高く金物と木材料について明るい人が望ましいでしょう。
それでは、『ここは必須!』って言う箇所の拡大図を載せておきます。
続きをご覧ください!
頑張ってます!
↓ ↓ ↓

デザインランキング

にほんブログ村
●スポンサードリンク
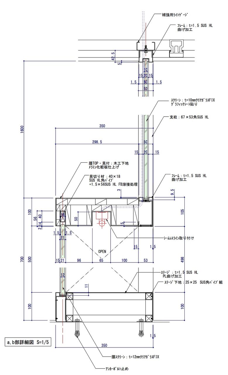
一番ややこしいのが以下の断面詳細図です。
平面図や立面図は容易いですが、こればかりは、慎重に描かなきゃだめですね。
スチールの曲げ加工などを詳しく描くとなると、早くても3〜4時間はかかります。

初心者の方はなおさらです。
しかし、ひとつひとつ細かい箇所を理解すれば描くことが出来るかもしれません。
図面を描くのには忍耐が必要ですが、覚えてしまえば、逆に楽しささえ感じてきます。
今日は以上とします。
皆さんに、エールを送ります。それぞれの部材を覚えろ!頑張ってます!↓ ↓ ↓
デザインランキング
にほんブログ村