リタイヤした平凡な図面屋です。仕事から解放されて日々のんびり気楽に暮らしてます。そんな奴が好き勝手書いてます!

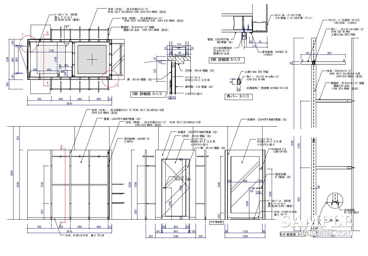
| ■サイズ | ■仕様 | |
| W2670×D1280×H2950 図面参照 | 柱巻き:LGS+PB12.5下地AEP塗装(白) 支柱:38φロイヤル スリットパイプ 焼き付け仕上げ | |
| ■備考 作図日:2001.05.15 業態:メンズカジュアル(イクシーズ) 【PF_000】は「Pillar features」の略語 | ||
【作図ポイント】
断面図で示しているインロー寸法については、当初の図面ではやや短かったため、発注時に見直しを行いました。
持ち出し寸法に対してインローパイプは約半分程度を目安とし、剛性と施工性のバランスを取っています。
床面については、座カバーを用いて固定していますが、床レベル調整の必要があったため、支柱底面にはアジャスターを溶接しています。
ただし、支柱自体にスリット加工が施されているため、アジャスター調整と同時に、取り付くパーツ側のレベルにも影響が出やすく、細かな調整が必要となりました。

【私感として】
FRを抱き合わせた柱造作は、構成自体はシンプルに見えても、実際には持ち出し構造や床調整など、現場対応力が問われるケースが多いです。
この事例では、インロー寸法の見直しやアジャスター対応など、実務の中での調整ポイントが素直に図面へ反映されており、経験値のある作図だと感じます。
特に、スリット支柱を使った場合のレベル調整は意外とクセが出やすい部分なので、同様の構成を考える際の参考事例として押さえておきたい内容やと思います。
応援よろしくお願いします
↓ ↓ ↓![]()
デザインランキング