
■サイズ
| ■仕様 |
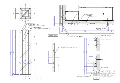
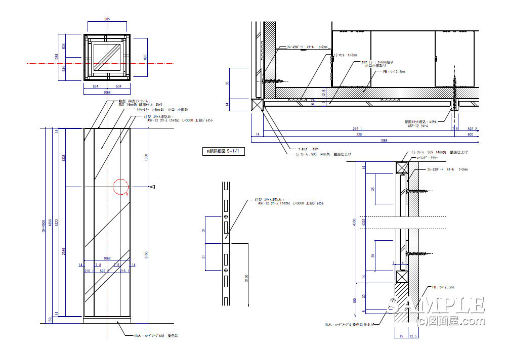
W1086×D1086×H4500 図面参照 | 柱:LGS+PB下地クリアミラー貼り 巾木:ハードメープル染色CL仕上げ
|
■備考
|
この作図事例はミラー貼り柱の詳細図ですが、柱の各面にシステムである
スリットが埋め込まれています。
ちょっと厄介ですな!しかし、
スリットを除けばミラー貼り柱図としては "きほんのき"のような気がしますので、しっかり覚えておいて下さい。
ミラー貼り柱にスリットはもったいないような気もしますが、繁忙期には活躍はするでしょうねな!
ではでは、
続きに行きますかね!
頑張ってます!↓ ↓ ↓
デザインランキング
にほんブログ村
●スポンサードリンク
<div>まあ、普段は特に商品などを展示しなくても問題ないのでしょう。姿見にも成りますからね。またスリットがあるために一点掛けなどでディスプレーも可能です。
そう考えれば、閑散期、繁忙期においてかなりバリエーションが考えられるので、このミラー貼り柱は活用価値がありますね。
それでは、詳細図をご覧ください。

上が、平面詳細図で下が縦断面詳細図ですが、読めますか>?
納め的には、これといって難しい所はありませんが、せっかくですから注意点を2点お伝えしておきます。(初歩的なこと)
1点目は、ミラーのジョイントラインをどこで設定するかです。
ミラーもサイズによってコストが変わります。また、サイズが大きくなればなる程ガラスの歪みやひねり等があって「写り」の調整が難しくなってきます。
意匠も重要ですが、ミラーの分割サイズにも注意が必要です。今回の事例では、3150mmと1350mmの2分割となっていますが、片方が極端に長いサイズなので、均等にするべきだったような気もします。
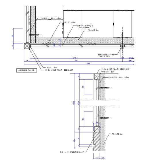
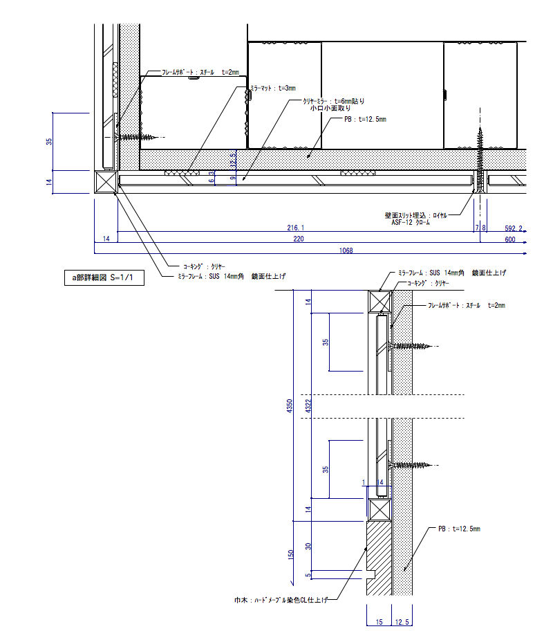
2点目は、ミラーフレームの取り付けです。
図面を見てください!各コーナーにミラーフレームとして14mm角のステンレスヘアライン角パイプを取り付けています。
この角パイプを固定の為
35mmのフラットバーを溶接していますが、この
フラットバーの長さにも注意しを要します。
あまり短すぎると、壁下地材の軽量鉄骨(LGS)にビスが掛からないことがあるからです。図面の
平面詳細図のように必ず軽量鉄骨(LGS)にビスが揉み込める長さにしてください。
最後に、簡単のように感じる今回のミラー貼り柱の施工図ですが、今でも出来の悪い輩は相変わらず同じところで蹴躓いていますが、みなさんは大丈夫ですね!
頑張ってます!↓ ↓ ↓
デザインランキング
にほんブログ村