
何処の売場にも必ずといって存在するのが柱ですが、空間を演出する我々店舗デザイナーにとって悩みの種でもあります。
個店ならまだしも、百貨店やGMSの場合は特にこの柱が邪魔で、嫌われ者でした。
しかし、建物には当然と必要なものですしこれがなければ建物は出来ません。
最近でも建築の進化で細くはなったように思える柱ですが、やはり邪魔者ですね!
この事例は、売場で言うと「靴売場」です。
もちろん「靴売場」以外でも機能を買えてやればある意味、あらゆる業態に対応できると考えられます。
頑張ってます!↓ ↓ ↓
デザインランキング
にほんブログ村
●スポンサードリンク
機能はいたってシンプルな考え方で構成しました。
柱半分は、棚構成です。それも多様性を考えてフレキシブルなものにしました。
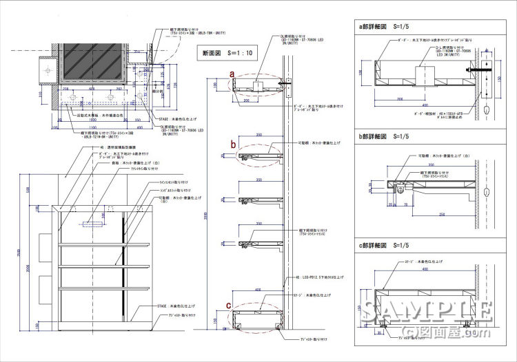
残りの半分は、この図面では見えにくいですがちょうど、平面図の左端を見れば理解出来るでしょう。
ここには、商品ディスプレーが出来るように照明付きボックスを配置しました。
ですから、この柱巻には
ふたつの見え方ができます。
これにより売場に変化ができ、お客様の滞在時間も増え購買にも繋がると考えます。
尚、展開図にボーダーが見えますが、この効果としては売場の存在感が増すかとは思います。
カラーボーダーでのインパクトも変化があって良いと考えます。
かなり昔に描いた図面ですが、アレンジを加えれば今でも十分使えるのではないでしょうか>?
是非、ご自分の責任で設計してみてください!
《知恵袋》
尚、壁面ボーダーの納めの拡大図添付しておきますので参考にしてください。
この場合は壁面に金物の補強材を入れていますが、もっと大きなボーダーで重量があるならば、天井から吊りパイプという手もあります。
頑張ってます!↓ ↓ ↓
デザインランキング
にほんブログ村