
■サイズ
| ■仕様 |
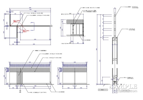
W3500×D2070×H1400 図面参照 | パーティション:木工化粧板仕上げ 巾木:木工化粧板仕上げ
|
■備考
|
この作図事例は格子付きパーティションの姿図と断面図です。
和食店のボックス席などの間仕切り用に設計したパーティションです。
皆さんも、きっとよく目にすることがあるでしょう。
パーティショントップに、施された格子状のデザインが『和』を感じるポイント!
しかし、格子状というか、これはグリッドですね!
何れにせよ、『和』は感じます。
尚、「PRTN」は、パーティションの簡略後です。
当サイトでは、「パーティション」を表すときは、これを使ってます。
それでは、
続きをご覧ください!応援、宜しくお願いします!↓ ↓ ↓
デザインランキング
にほんブログ村
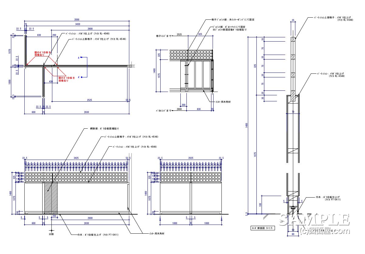
●スポンサードリンク施工上での注意点は以下の通りです。
まず、トップ画像にも赤で示しているカ所には意識してください。
基本的に、このパーティションは現場で組み立てる構造にしています。
ですから、腰の一部分をジョイント後に仕上げ材を取り付けるようにしました。
(*赤で示したカ所です)この場合、それぞれの仕上げ材には底目地を設けるように考えました。
これは、ジョイント箇所が分からないようにする手法のひとつです。
今考えれば、骨組みのみを先に固定して、最終の仕上げ材は骨組み固定終了後に、
取り付ける方が、良かったって感じます。
この方が納まりが、綺麗なはずです!
応援、宜しくお願いします!↓ ↓ ↓
デザインランキング
にほんブログ村