リタイヤした平凡な図面屋です。仕事から解放されて日々のんびり気楽に暮らしてます。そんな奴が好き勝手書いてます!

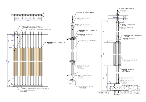
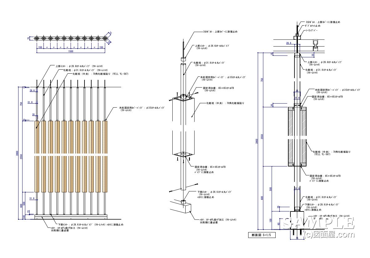
| ■サイズ | ■仕様 | |
| W1500×D75×H3900 図面参照 | 化粧柱:スチール丸パイプクロームメッキ仕上げ 木部:化粧板仕上げ(木目) ハカマ:スチール曲げ加工 クロームメッキ仕上げ | |
| ■備考 | ||
パーティション(PRTN)とは
パーティションとは、空間を区切るための「間仕切り」を指し、店舗設計においては、ゾーニングや視線制御、機能的な区画形成のために多用される要素である。
売場とバックヤードの明確な分離、視線の遮蔽、導線の整理、什器との組み合わせによる陳列効果の向上など、用途は多岐にわたる。
使用目的や店舗形態に応じて、パーティションの仕様は異なる。主に素材・高さ・可動性などの観点から選定されるが、代表的なものとして以下が挙げられる。
ローパーティション:圧迫感が少なく、視認性・開放感を維持しながら空間を緩やかに区切ることが可能。軽量かつ可動性に優れており、頻繁なレイアウト変更が求められる売場に適している。ただし、遮音性・プライバシー確保には不向きである。
ハイパーティション:天井までの高さを確保することで、視線遮蔽と遮音性に優れ、接客スペースやスタッフルームなどの確保に有効。ただし、重量や施工条件に制約があり、設置には専門的な知識と施工技術が求められる。
設計段階では、パーティションの機能性だけでなく、素材の質感や意匠性も含めた空間全体との調和を考慮し、最適なタイプを選定することが求められる。
これらを踏まえて、今回の事例に進みます。
続きをご覧ください!
応援、宜しくお願いします!
↓ ↓ ↓![]()
デザインランキング![]()
にほんブログ村
今回の作図事例は、化粧柱の意匠+上下スチール角パープを用いたパーティションです。