リタイヤした平凡な図面屋です。仕事から解放されて日々のんびり気楽に暮らしてます。そんな奴が好き勝手書いてます!

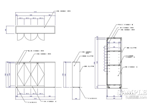
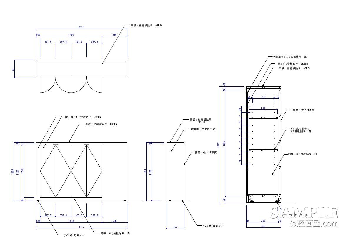
| ■Data NO. stockbox_001 | ||
| ■サイズ | ■仕様 | |
| W2110×H1350×D400 | 木下地化粧板仕上げ | |
| ■備考 内部棚ダボにて可動可 | ||
【作図解説】
この図面は、ショップのレジカウンター横などでよく見かける「置き式ストックボックス」の作図事例です。
収納としての役割はもちろん、お客様の一時的な取り置きや、店内在庫を整理するためにも重宝される什器です。
このストックボックスはレイアウト上、右側が“コロシ”になっており、ここには別什器が組み合わさる前提で構成されています。
【作図ポイント】
・棚はダボで可動式となっており、実用的かつ合理的な設計。
・注目すべきは、ダボ穴の配置──必要なところにだけ穴があり、無駄な加工が一切ありません。
・上部には固定棚を設けており、下部を可動棚にする構成もよく見られるパターンです。
・扉はグリーン、側板は白、とカラー指定がされており、空間の演出にも配慮されています。
ま〜
図面屋ま〜では、若き同業者の方々のお役に立てるよう、今まで描き続けてきた図面資料やデザイン資料などをお伝えしております。 ただ、掲載している作図資料はあくまで資料であり、全ての店舗や施工に当てはまるものではありません。ですから、参考程度の資料とお考えください。
Powered by ライブドアブログ