リタイヤした平凡な図面屋です。仕事から解放されて日々のんびり気楽に暮らしてます。そんな奴が好き勝手書いてます!

| ■サイズ | ■仕様 | |
| W1270×D920×H900 図面参照 | 本体:米松 柾目染色CL仕上げ 側面:セキスイ アイライン ウッドパネル(セン柾目) 棚小口:スチールFB曲げ加工ダルクロームメッキ仕上げ | |
| ■備考 ★ | ||
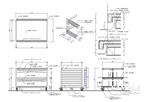
【作図解説】
今回の什器は、米松の框材を中心に構成したオープンタイプの棚什器です。前後どちらからも視認性とアクセス性があり、陳列方法に幅を持たせられる仕様になっています。
棚板はスライドレールで前後に可動し、補充作業やレイアウト変更がしやすい構造です。
天板と側板の一部には化粧板 DJ-8650S を使用し、スチール部材にはダルクロームメッキを採用して、木質との質感バランスをとっています。
また、本体はキャスター仕様とし、ハンマー印RBシリーズで移動性を確保しています。
それでは続きをどうぞ!
応援、宜しくお願いします!
↓ ↓ ↓![]()
デザインランキング![]()
にほんブログ村
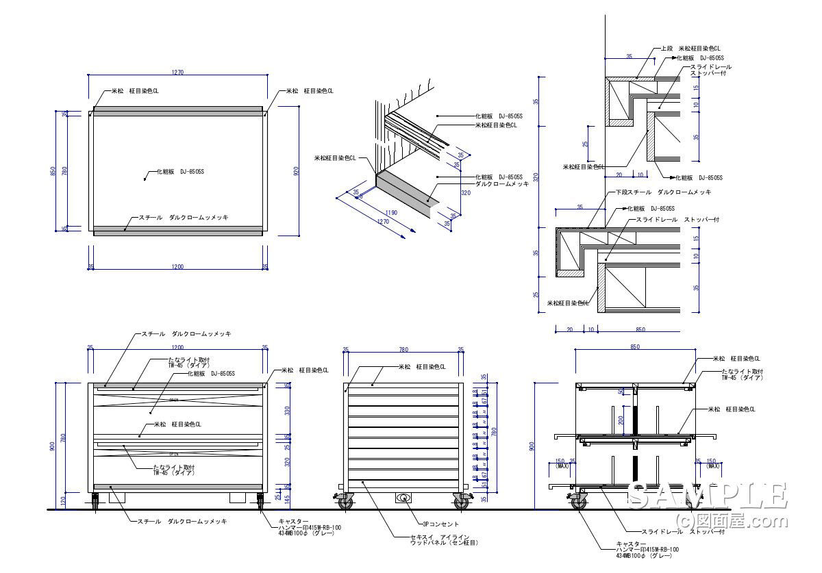
【作図ポイント】
スライド棚のレールにはストッパーを付けており、不意に棚が飛び出さないよう安全性を確保しています。
米松框は染色クリアで統一し、見付寸法35mmを基準にラインを揃えることで、全体の見え方に一体感を持たせています。
棚間寸法は200mmを確保して、雑貨から軽衣料まで幅広く対応できる内寸を設定しています。
可動什器のため、下部には補強スチールを通して荷重によるたわみを抑える構造にしています。さらに電源関係は底部中央にまとめ、配線の動線が干渉しないように計画されています。
以下は、この什器の断面詳細図ですので、重要視してください。
部分詳細図も、トップ画像にあります。
【私感として】
スライド式の棚を持つ什器は、売場の運用方法に合わせて自由度が高いので、かなり実用的な仕組みだと感じます。
木質の框にダルクロームを組み合わせた仕上げはクセがなく、さまざまな売場で使いやすい印象です。
ただ、可動棚とキャスター仕様の組み合わせなので、荷重が偏ると動きにクセが出ることもあり、運用時には荷重バランスの意識が必要です。
トータルでは、機能性とデザイン性がバランス良くまとめられた、扱いやすい棚什器だと思います。
応援、宜しくお願いします!
↓ ↓ ↓![]()
デザインランキング![]()
にほんブログ村