リタイヤした平凡な図面屋です。仕事から解放されて日々のんびり気楽に暮らしてます。そんな奴が好き勝手書いてます!

| ■サイズ | ■仕様 | |
| W1050×D750×H1000 図面参照 | 本体:木ラッカー塗装仕上げ 棚板:t=6mmクリアガラス | |
| ■備考 作図日:2009.04 業態:組曲キッズ 【SF_000】は「shelf fixtures」棚什器の略語 | ||
【作図解説】
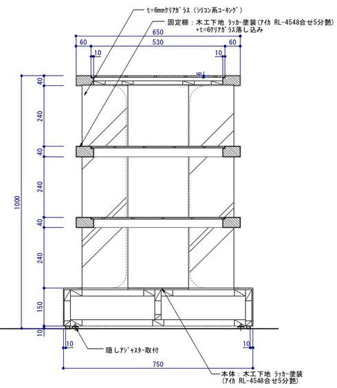
この作図事例は、子供服売り場向けに設計したオープン棚什器の姿図と断面図である。
両サイドのサイドパネルを部分的に欠き込み、そこへクリアガラスを差し込むことで、フォルムに動きをつけている点が大きな特徴となっている。
ガラスは6mm厚で、棚板への落とし込みや端部の納まりも比較的タイトなため、全体を軽やかに見せつつも、要所の接点では丁寧な設計が求められる。
また、サイドパネルにはエッチング加工されたクローバーマークが施されており、子供売り場らしい柔らかさとショップのイメージ訴求を兼ねている。
それでは、続きを!
応援よろしくお願いします
↓ ↓ ↓![]()
デザインランキング
【作図ポイント】
今回の什器で注意したいのは、中棚とサイドパネルとの接点が小さい構造になっている点である。ガラスを差し込むためにパネルの一部を抜いているため、実際に棚板が受けられる面積が限定されてしまう。
棚板自体は木工下地にラッカー塗装仕上げとなっており、見た目はシンプルだが、固定ビスの効きや、棚板の沈み込みを防ぐための補強方法など、目に見えない部分の処理が図面上の大事なポイントになる。
また、側面のガラスはシリコン系のコーキング止めで納めているため、現場での微調整がしやすい半面、ガラス幅のクリアランス管理が非常に重要になる。
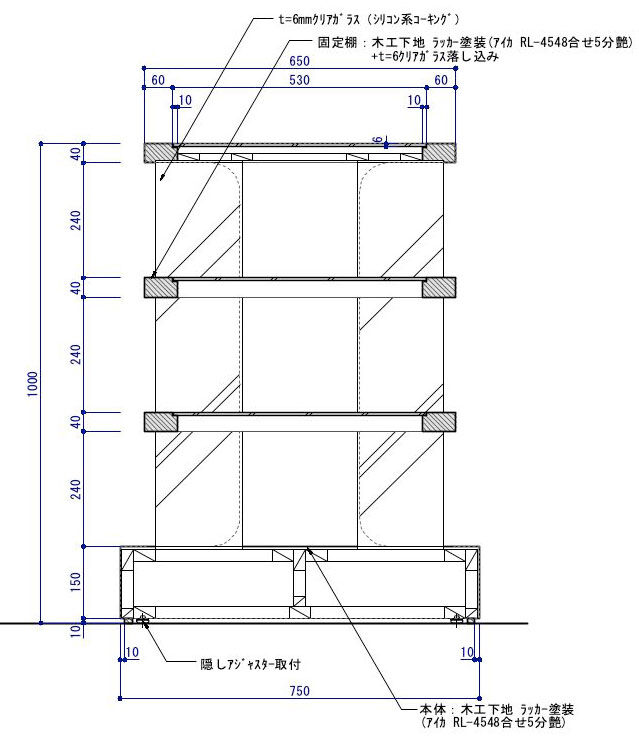
以下断面詳細図を添付しておくので、理解願いたし!!
【私感として】
子供服売り場の什器は、どうしても“可愛らしさ”や“やわらかい見せ方”を求められることが多い。
が、今回のようにガラスとサイドパネルの組み合わせで軽快さを出す手法は、売り場全体の雰囲気づくりにも相性が良い。
ただし、構造的には板材の欠き込みや棚板の受け寸法など、見せ方のために削った分だけリスクが生まれるため、図面段階で安定性と強度をどれだけ確保するかが腕の見せどころになる什器でもある。
細身の印象とは裏腹に、内部構造の計画はしっかりしている必要があると改めて感じる。
【まとめ】
子供服用オープン棚什器は、見せ方と構造のバランスが問われる代表的な什器である。
側面のガラス差し込みやクローバーマークのエッチングなど、視覚的なアクセントはショップイメージを効果的に伝える役割を果たしている。
一方で、中棚とサイドパネルの接点が小さい形状ゆえ、固定方法や強度面では慎重な設計が不可欠となる。意匠性と安全性を両立させるための基本的な考え方がまとまった事例といえる。
応援よろしくお願いします
↓ ↓ ↓![]()
デザインランキング