リタイヤした平凡な図面屋です。仕事から解放されて日々のんびり気楽に暮らしてます。そんな奴が好き勝手書いてます!

| ■サイズ | ■仕様 | |
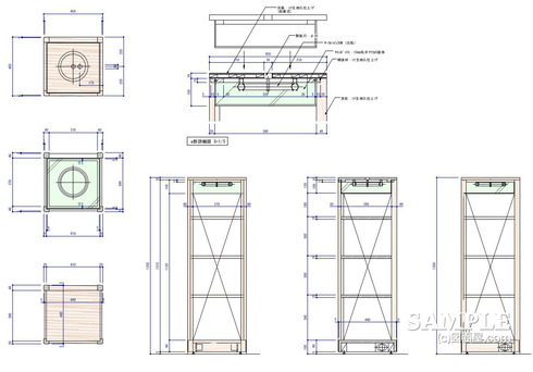
| W450×D450×H1350 図面参照 | 行灯部:t=5mm乳半アクリル使用 本体:シナ材生地染色CL仕上げ | |
| ■備考 作図日:不明(2005年頃) 業態:アパレル全般 | ||
【作図解説】
この作図事例は、天板部に行灯サインを組み込んだコンパクトなオープン棚什器です。
バッグやアクセサリーなどの雑貨類を想定しており、売場の中で程よく視線を集める構成になっています。
本体は4本支柱構成で、うち2本はL型形状とし、意匠上のアクセントを持たせています。構造的には問題がないため、デザイン条件次第では形状を統一することも可能でしょう。
上部の行灯サインは、乳半アクリルを弁当箱状に成形し、天板と一体化しています。
この天板ユニットを上から落とし込む納まりとし、本体上部には天板受け兼補強材を設けることで、強度と安全性を確保しています。
固定ビスが表に出ない点も、見た目をすっきりさせるポイントです。
それでは続きをご覧ください!
応援よろしくお願いします
↓ ↓ ↓![]()
デザインランキング
【作図ポイント】
行灯付き天板を落とし込み構造にすることで、施工時の精度が出しやすく、納まりも明快です。
一方、熱抜き処理については注意が必要です。
什器高さが1350mmと低いため、天板に設けた熱抜き穴が視認されやすく、埃の侵入も懸念されます。改善案としては、乳半アクリボックス底面の四隅に小径の開口を設ける方法が現実的でしょう。
意匠と機能の両立が図れます。
以下、アンド運部分の拡大図です。
【私感として】
2000年代初頭のブランドショップ設計ですが、実務的で割り切りの良いオープン棚什器です。
構造はシンプルですが、行灯サインという「見せ場」をしっかり持たせている点が特徴と言えます。
一方で、熱処理やメンテナンス性など、使い続けることを前提とした細部の検討が、仕上がりの質を左右する典型例でもあります。
コンパクトながら売場演出に効く、扱いやク印象に残る什器の好事例でしょう。
応援よろしくお願いします
↓ ↓ ↓![]()
デザインランキング