
■サイズ
| ■仕様 |
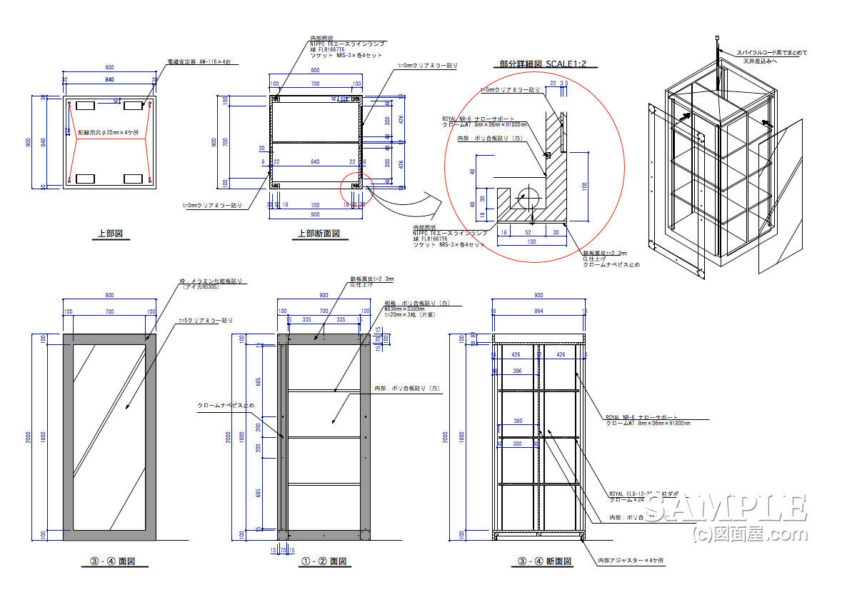
W900×D900×H200 図面参照 | 本体:木工化粧板仕上げ 額縁:鉄板黒皮仕上げ
|
■備考 ★
|
この作図事例は、ハイタワー型オープン式の棚什器の姿図とその断面図と詳細図です。
今現在(2022年)では、あまり見ることは無いでしょう。
昔のカテゴリーショップで考えた什器で、だだっ広い空間を締めるポイント什器として設置したものです。
サイズ的に、かなり存在感のある什器ですから、規制が厳しい百貨店では、高さに指摘があるかもしれません。(H=2000mmだから可能かもしれませんが.......。)
造りとしては、
二面がミラー貼りとなり、二面がオープンタイプの棚形式になっています。棚形式の面には、見付けにポイントとしてスチール黒皮仕上げのフラットバーをビス固定しています。よく使うテクニックのひとつなので、覚えておいても良いでしょう!この店舗の共通の意匠として、このスチール黒皮仕上げを挙げましたので、他の什器にも共通した意匠として付加させました。
それでは、テーマである用途とは何でしょう!
続きをご覧ください!
頑張ってます!↓ ↓ ↓
デザインランキング
にほんブログ村
●スポンサードリンク
什器としては、前述したようにかなり存在感はあります。目立ちます!
オープンタイプの棚什器といっても半固定什器になることになります。
レイアウトをする上でも設置場所には注意が必要でが、ここがポイントです。
実は、二面にミラー貼りをしてるのは、姿見としてのようとも考えたわけです。あたりまえのことですが、商品の横に姿見があれば、便利ですよね。
おまけに存在感ときてますから、この什器とフィッティングルームを旨く組み合わせれば、効果てきめんです。
まぁ、だだっ広い倉庫のような空間だったので良かったような気がします。
あまり参考にはなりませんが、これもヒントのひとつとして、自分のモノとしてください。
以下、詳細図とスケッチ添付しておきます。
詳細図の位置を確認して読み取ってください


最後に黒皮仕上げについて!
様々な解説があるのですが、簡単に言えば鋼材その物の色です。全て黒っぽい色とは限らず、鋼材によって風合いは変わります。

※タワー型オープン棚什器の記事が下記にもありますので参考にどうぞ
☆タワー型オープン什器詳細図.02☆
⇒
詳細はこちらから頑張ってます!↓ ↓ ↓
デザインランキング
にほんブログ村